ติดตั้งการ์ดส่วนขยายใน Mac Pro (แบบแร็ค)
คุณสามารถปรับแต่ง Mac Pro ของคุณได้โดยติดตั้งการ์ดเพิ่มเติมในช่องเสียบส่วนขยาย PCI Express
ช่องเสียบทั้งหมดเชื่อมต่อกันผ่านสวิตช์ PCI Express บนลอจิกบอร์ดหลักของ Mac Pro แบนด์วิดท์ของสวิตช์ PCI Express จะถูกกำหนดค่าโดยอัตโนมัติผ่านการจัดสรรทรัพยากรกลาง คุณสามารถใช้ยูทิลิตี้ช่องเสียบส่วนขยายเพื่อกำหนดค่าการจัดสรรทรัพยากรกลางด้วยตัวเองได้ โปรดดูที่บทความบริการช่วยเหลือของ Apple ติดตั้งการ์ด PCIe ใน Mac Pro ของคุณสำหรับข้อมูลเพิ่มเติมเกี่ยวกับยูทิลิตี้ช่องเสียบส่วนขยาย
เพื่อประสิทธิภาพสูงสุด ให้ใช้ช่องเสียบที่มีจำนวนเลนอย่างน้อยเท่ากับจำนวนการ์ดที่ใช้ ดูตารางด้านล่างสำหรับรายละเอียด
โมดูล MPX จาก Mac Pro ที่ใช้ Intel จะไม่รองรับใน Mac Pro ที่มี Apple Silicon
หมายเหตุ: ตัวเลือกเหล่านี้เป็นตัวเลือกสำหรับเวิร์กสเตชั่น Mac Pro แบบแร็คที่มี Apple Silicon ถ้าคุณมีเวิร์กสเตชั่น Mac Pro แบบแร็คที่ใช้ Intel ให้ดูที่ติดตั้งการ์ดส่วนขยายใน Mac Pro ถ้าคุณมีเวิร์กสเตชั่น Mac Pro แบบทาวเวอร์ ให้ดูที่ติดตั้งการ์ดส่วนขยายใน Mac Pro
ช่องเสียบ | จำนวนเลน | การรองรับ PCI Express |
|---|---|---|
ช่องเสียบที่ 7 | x4 (ติดตั้งมาให้แล้วพร้อมกับการ์ด Apple I/O) | PCIe 3.0 |
ช่องเสียบที่ 6 | x8 | PCIe 4.0 |
ช่องเสียบที่ 5 | x8 | PCIe 4.0 |
ช่องเสียบที่ 4 | x8 | PCIe 4.0 |
ช่องเสียบที่ 3 | x8 | PCIe 4.0 |
ช่องเสียบที่ 2 | x16 | PCIe 4.0 |
ช่องเสียบที่ 1 | x16 | PCIe 4.0 |
Mac Pro มีช่องเสียบแบบความกว้างสองเท่าสี่ช่อง และช่องเสียบแบบความกว้างมาตรฐานสามช่อง ซึ่งสามารถกำหนดเองโดยใช้การ์ดเพื่อเพิ่มความสามารถของ Mac Pro ได้ ช่องเสียบที่ 7 ถูกติดตั้งมาให้แล้วพร้อมกับการ์ด Apple I/O แต่การ์ดนี้สามารถถอดออกเพื่อติดตั้งการ์ด PCIe อื่นๆ ได้

คำเตือน: เว้นระยะห่างของการ์ดขณะที่ติดตั้งเพื่อให้มีการระบายอากาศสูงสุด ถ้าคุณถอดการ์ดออกและไม่ได้ติดตั้งการ์ดที่จะเปลี่ยนใหม่ ให้วางฝาครอบช่องพอร์ตบนช่องเสียบที่ว่างเพื่อป้องกันไม่ให้วัตถุแปลกปลอมเข้าไปในตัวเครื่อง ช่องเสียบที่ไม่ได้ปิดไว้อาจก่อให้เกิดความเสียหายได้โดยส่งผลต่อการไหลเวียนของอากาศที่ทำให้ส่วนประกอบภายในเย็นลง
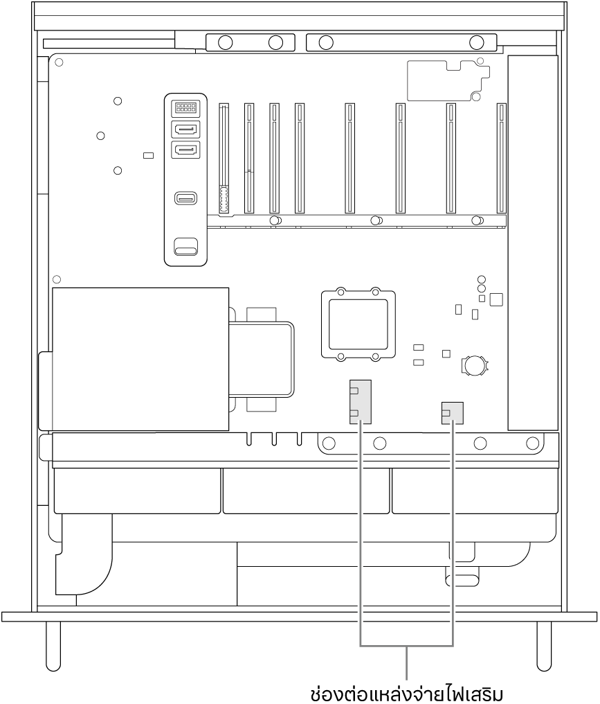
สิ่งสำคัญ: เชื่อมต่อการ์ดเข้ากับแหล่งจ่ายไฟที่เหมาะสม ดังภาพประกอบด้านล่าง ใช้สายที่มีจำหน่ายออนไลน์ที่ apple.com/th หรือที่ Apple Store เท่านั้น หรือสายที่มาพร้อมกับการ์ด PCIe ที่ใช้งานร่วมกันได้ของบริษัทอื่น
โปรดระมัดระวังเมื่อเชื่อมต่อกับช่องต่อ AUX เมื่อติดตั้งอุปกรณ์เสริมเข้ากับระบบของคุณที่ใช้กำลังไฟ AUX ให้เชื่อมต่อช่องต่อ AUX เป็นอย่างแรก จากนั้นจึงติดตั้งโมดูล ระมัดระวังไม่ให้โมดูลตกขณะที่เชื่อมต่ออยู่กับช่องต่อ AUX เพราะอาจทำให้ช่องต่อ AUX หรือลอจิกบอร์ดเสียหาย ถ้าช่องต่อ AUX เสียหาย อย่าเปิดคอมพิวเตอร์ของคุณเพราะอาจทำให้คอมพิวเตอร์เสียหายมากขึ้น โปรดดูที่ข้อมูลความปลอดภัยที่สำคัญสำหรับ Mac ของคุณสำหรับข้อมูลเพิ่มเติมเกี่ยวกับการซ่อมแซม Mac Pro ของคุณ

ทำตามขั้นตอนเหล่านี้เพื่อติดตั้งการ์ดส่วนขยายใน Mac Pro ของคุณ
ปิด Mac Pro ของคุณโดยเลือกเมนู Apple
> ปิดเครื่อง
ปล่อยอุปกรณ์ของคุณทิ้งไว้เป็นเวลา 5 ถึง 10 นาทีเพื่อให้อุปกรณ์ภายในที่อาจกำลังร้อนอยู่เย็นตัวลงก่อนที่คุณจะสัมผัสอุปกรณ์เหล่านั้น
ถอดสายทั้งหมดยกเว้นสายปลั๊กไฟออกจาก Mac Pro ของคุณ
แตะโลหะด้านนอก Mac Pro ของคุณเพื่อคายประจุไฟฟ้าสถิตใดๆ
หมายเหตุ: คายประจุไฟฟ้าสถิตก่อนที่คุณจะสัมผัสชิ้นส่วนต่างๆ หรือติดตั้งส่วนประกอบภายใน Mac Pro ของคุณเสมอ ในการหลีกเลี่ยงการเกิดไฟฟ้าสถิต อย่าเดินไปมาในห้องจนกว่าคุณจะติดตั้งการ์ดส่วนขยายเสร็จ
ถอดสายปลั๊กไฟ
เลื่อน Mac Pro ออกจากแร็ค
หมายเหตุ: คุณสามารถติดตั้งการ์ดส่วนขยายในขณะที่ Mac Pro ยังติดตั้งอยู่ในแร็คได้
ดันสลักบนฝาปิดข้างใดข้างหนึ่งเข้าไป จากนั้นยกฝาปิดขึ้น แล้วเลื่อนฝาปิดออกจากคอมพิวเตอร์

ถอดโครงยึดด้านข้างที่จำเป็นออก
ถ้าคุณกำลังติดตั้งการ์ดลงในช่องเสียบที่ 1, 2, 3 หรือ 4 ให้ถอดโครงยึดด้านข้างที่อยู่ด้านขวาล่างสุดออก
ถ้าคุณกำลังติดตั้งการ์ดลงในช่องเสียบที่ 5, 6 หรือ 7 ให้ถอดโครงยึดด้านข้างที่อยู่ด้านขวาบนสุดออก
ถ้าคุณกำลังติดตั้งการ์ดที่มีความยาวมาตรฐาน ให้ถอดโครงยึดด้านข้างทางด้านซ้ายออก

เอาตัวปิดช่องเสียบออก

เลื่อนล็อคไปทางขวา

เอาการ์ดใหม่ออกจากถุงป้องกันประจุไฟฟ้าสถิตแล้วถือไว้โดยจับที่มุมของการ์ด อย่าสัมผัสตัวเชื่อมต่อสีทองหรือส่วนประกอบต่างๆ บนการ์ด
หมายเหตุ: ใช้โมดูล PCIe ที่ผ่านการรับรองความปลอดภัย (CSA, UL หรือเทียบเท่า) และระบุเจาะจงว่าเป็นไปตามข้อกำหนดมาตรฐานอุตสาหกรรมของ PCIe เท่านั้น
เลื่อนการ์ดให้เข้าที่

เลื่อนล็อคไปทางซ้าย

ติดตั้งโครงยึดด้านข้างทางด้านขวาอีกครั้ง ถ้าคุณติดตั้งการ์ดที่มีความยาวมาตรฐานและถอดโครงยึดด้านข้างทางด้านซ้ายออก ให้ติดตั้งโครงยึดด้านข้างทางด้านซ้ายอีกครั้งด้วย

ติดตั้งฝาปิดอีกครั้ง โดยตรวจสอบให้แน่ใจว่าล็อคสลักแล้ว
Mac Pro จะไม่สามารถเริ่มต้นระบบได้จนกว่าจะติดตั้งฝาครอบอีกครั้ง

ติดตั้ง Mac Pro กลับเข้าไปในแร็คอีกครั้ง
เสียบสายปลั๊กไฟและสายอื่นๆ ทั้งหมดเข้ากับ Mac Pro ของคุณอีกครั้ง