Установка карт расширения в Mac Pro
Вы можете сконфигурировать Mac Pro, установив дополнительные карты в слоты расширения PCI Express.
Все слоты подключены через контроллер PCI Express на материнской плате Mac Pro. Пропускная способность контроллера PCI Express автоматически настраивается посредством распределения пула памяти. Чтобы конфигурировать распределение пула памяти вручную, можно использовать Утилиту слотов расширения. Подробнее об Утилите слотов расширения см. в статье службы поддержки Apple Установка плат PCIe в компьютер Mac Pro.
Для достижения оптимальной производительности используйте любой слот, который имеет не меньше линий, чем используемая карта. Подробнее см. в таблице ниже.
Модули MPX из Mac Pro с процессором Intel не поддерживаются в Mac Pro с чипом Apple.
Примечание. Если у Вас рабочая станция Mac Pro, устанавливаемая в стойку, см. раздел Установка карт расширения в Mac Pro, устанавливаемый в стойку.
Слот | Число линий | Поддерживаемая производительность PCI Express |
|---|---|---|
Слот 7 | x4 (поставляется с платой ввода-вывода Apple) | PCIe 3.0 |
Слот 6 | x8 | PCIe 4.0 |
Слот 5 | x8 | PCIe 4.0 |
Слот 4 | x8 | PCIe 4.0 |
Слот 3 | x8 | PCIe 4.0 |
Слот 2 | x16 | PCIe 4.0 |
Слот 1 | x16 | PCIe 4.0 |
Mac Pro оснащен четырьмя слотами двойной ширины и тремя слотами одинарной ширины, в которые можно установить различные карты для расширения возможностей Mac Pro. В слот 7 изначально установлена плата ввода-вывода Apple, но ее можно удалить для установки в слот других карт PCI.

ПРЕДУПРЕЖДЕНИЕ. Для оптимальной вентиляции по возможности не устанавливайте карты в соседние слоты. Если вы извлекаете карту и не устанавливаете вместо нее другую карту, закройте пустой слот крышкой доступа к порту, чтобы внутрь корпуса не могли попасть посторонние предметы. Открытый слот влияет на поток воздуха, который охлаждает внутренние компоненты: это может вызвать повреждения.
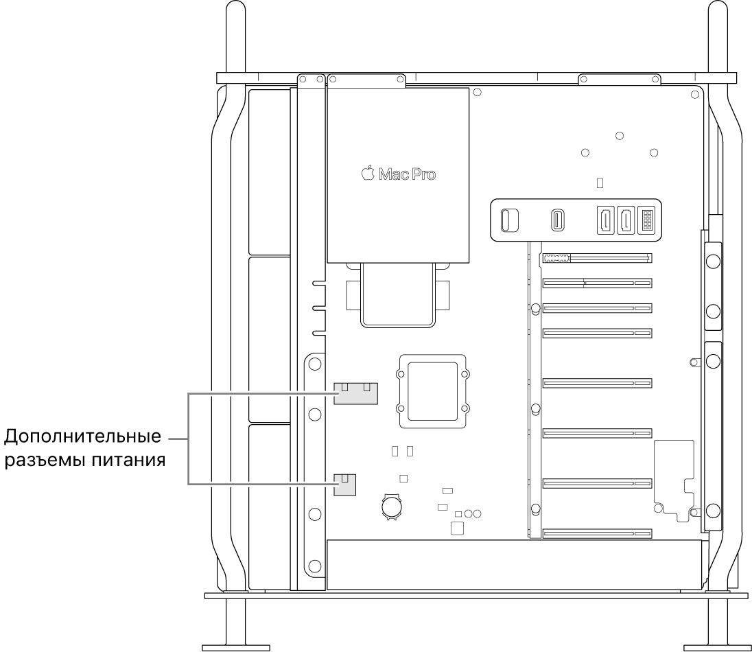
Важно! Подключите карты к соответствующим источникам питания, как показано на рисунке ниже. Используйте только кабели, приобретенные на веб-сайте apple.com/ru или в магазине Apple Store, а также кабели, поставляемые с совместимыми платами PCI сторонних производителей.
При подключении к разъемам AUX необходимо соблюдать осторожность. При установке аксессуара, который использует питание AUX, сначала подсоедините разъем AUX, а затем устанавливайте модуль. Не уроните модуль в процессе подключения к разъему AUX, так как это может привести к повреждению разъема AUX или материнской платы. Если разъем AUX поврежден, не включайте компьютер во избежание дальнейшего повреждения. Подробную информацию о ремонте Mac Pro см. в разделе Важная информация по безопасности Mac.

Следуйте данным инструкциям для установки карт расширения в Mac Pro.
Выключите Mac Pro. Для этого выберите меню «Apple»
> «Выключить».
Внутренние компоненты могут быть очень горячими, поэтому, прежде чем прикасаться к ним, подождите 5–10 минут, чтобы они остыли.
Отсоедините от Mac Pro все кабели, кроме шнура питания.
Прикоснитесь к металлическому корпусу с внешней стороны Mac Pro, чтобы снять статический заряд.
Примечание. Всегда снимайте статический заряд, прежде чем прикасаться к деталям или устанавливать компоненты внутри Mac Pro. Чтобы избежать образования статического заряда, не ходите по комнате, пока не закончите установку карт расширения.
Отсоедините шнур питания.
Разблокируйте корпус компьютера, повернув защелку на 90 градусов против часовой стрелки.
ПРЕДУПРЕЖДЕНИЕ. Не поворачивайте защелку при включенном компьютере; это может привести к выключению компьютера.


Снимите корпус компьютера, потянув его вверх за защелку.
Примечание. Пока корпус Mac Pro снят, загрузка компьютера невозможна.

Снимите нужные боковые скобы.
При установке карты в слоты 1, 2, 3 или 4 снимите боковую скобу снизу справа.
При установке карты в слоты 5, 6 или 7 снимите боковую скобу сверху справа.
При установке полноразмерной карты снимите левую боковую скобу.

Снимите крышку слота.

Сдвиньте фиксатор вправо.

Извлеките новую карту из антистатического пакета. Держите карту за углы. Не прикасайтесь к золотому разъему или компонентам карты.
Примечание. Компания Apple рекомендует использовать только те модули PCIe, которые имеют сертификат безопасности (CSA, UL или аналог) и для которых прямо указано, что они соответствуют стандартной спецификации PCIe.
Вдвиньте карту на место.

Сдвиньте фиксатор влево.

Верните на место боковые скобы, расположенные с правой стороны. Если Вы устанавливали полноразмерную карту и сняли левую боковую скобу, также верните ее на место.

Верните корпус компьютера на место, а затем поверните защелку на 90 градусов по часовой стрелке, чтобы заблокировать корпус.
Mac Pro не сможет запуститься, пока корпус не будет установлен на место, а защелка повернута в исходное положение.
Подсоедините все кабели и шнур питания обратно к Mac Pro.