Установка карт расширения в Mac Pro, устанавливаемый в стойку
Вы можете сконфигурировать Mac Pro, установив дополнительные карты в слоты расширения PCI Express.
Все слоты подключены через контроллер PCI Express на материнской плате Mac Pro. Пропускная способность контроллера PCI Express автоматически настраивается посредством распределения пула памяти. Чтобы конфигурировать распределение пула памяти вручную, можно использовать Утилиту слотов расширения. Подробнее об Утилите слотов расширения см. в статье службы поддержки Apple Установка карт PCI в Mac Pro.
Для достижения оптимальной производительности используйте любой слот, который имеет не меньше линий, чем используемая карта. Подробнее см. в таблице ниже.
Модули MPX из Mac Pro с процессором Intel не поддерживаются в Mac Pro с чипом Apple.
Примечание. Эти возможности актуальны для рабочей станции Mac Pro с чипом Apple, устанавливаемой в стойку. Если у Вас рабочая станция Mac Pro с процессором Intel, устанавливаемая в стойку, см. раздел Установка карт расширения в Mac Pro. Если у Вас рабочая станция Mac Pro башенного типа, см. раздел Установка карт расширения в Mac Pro.
Слот | Число линий | Поддержка PCI Express |
|---|---|---|
Слот 7 | x4 (поставляется с платой ввода-вывода Apple) | PCIe 3.0 |
Слот 6 | x8 | PCIe 4.0 |
Слот 5 | x8 | PCIe 4.0 |
Слот 4 | x8 | PCIe 4.0 |
Слот 3 | x8 | PCIe 4.0 |
Слот 2 | x16 | PCIe 4.0 |
Слот 1 | x16 | PCIe 4.0 |
Mac Pro оснащен четырьмя слотами двойной ширины и тремя слотами одинарной ширины, в которые можно установить различные карты для расширения возможностей Mac Pro. В слот 7 изначально установлена плата ввода-вывода Apple, но ее можно удалить для установки в слот других карт PCI.

ПРЕДУПРЕЖДЕНИЕ. Для оптимальной вентиляции по возможности не устанавливайте карты в соседние слоты. Если вы извлекаете карту и не устанавливаете вместо нее другую карту, закройте пустой слот крышкой доступа к порту, чтобы внутрь корпуса не могли попасть посторонние предметы. Открытый слот влияет на поток воздуха, который охлаждает внутренние компоненты: это может вызвать повреждения.
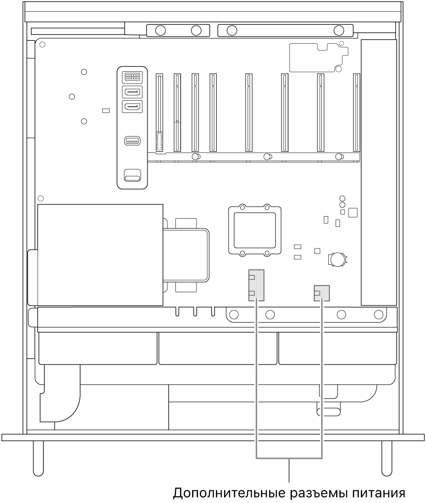
Важно! Подключите карты к соответствующим источникам питания, как показано на рисунке ниже. Используйте только кабели, приобретенные на веб-сайте apple.com/ru или в магазине Apple Store, а также кабели, поставляемые с совместимыми платами PCI сторонних производителей.
При подключении к разъемам AUX необходимо соблюдать осторожность. При установке аксессуара, который использует питание AUX, сначала подсоедините разъем AUX, а затем устанавливайте модуль. Не уроните модуль в процессе подключения к разъему AUX, так как это может привести к повреждению разъема AUX или материнской платы. Если разъем AUX поврежден, не включайте компьютер во избежание дальнейшего повреждения. Подробную информацию о ремонте Mac Pro см. в разделе Важная информация по безопасности Mac.

Следуйте данным инструкциям для установки карт расширения в Mac Pro.
Выключите Mac Pro. Для этого выберите меню «Apple»
> «Выключить».
Внутренние компоненты могут быть очень горячими, поэтому, прежде чем прикасаться к ним, подождите 5–10 минут, чтобы они остыли.
Отсоедините от Mac Pro все кабели, кроме шнура питания.
Прикоснитесь к металлическому корпусу с внешней стороны Mac Pro, чтобы снять статический заряд.
Примечание. Всегда снимайте статический заряд, прежде чем прикасаться к деталям или устанавливать компоненты внутри Mac Pro. Чтобы избежать образования статического заряда, не ходите по комнате, пока не закончите установку карт расширения.
Отсоедините шнур питания.
Выдвиньте Mac Pro из стойки.
Примечание. Карты расширения можно устанавливать, когда Mac Pro находится в стойке.
Надавите на защелки с обеих сторон крышки, затем поднимите крышку и снимите ее с компьютера.

Снимите нужные боковые скобы.
При установке карты в слоты 1, 2, 3 или 4 снимите боковую скобу снизу справа.
При установке карты в слоты 5, 6 или 7 снимите боковую скобу сверху справа.
При установке полноразмерной карты снимите левую боковую скобу.

Снимите крышку слота.

Сдвиньте фиксатор вправо.

Извлеките новую карту из антистатического пакета. Держите карту за углы. Не прикасайтесь к золотому разъему или компонентам карты.
Примечание. Используйте только те модули PCIe, которые имеют сертификат безопасности (CSA, UL или аналог) и для которых прямо указано, что они соответствуют стандартной спецификации PCIe.
Вдвиньте карту на место.

Сдвиньте фиксатор влево.

Верните на место боковые скобы, расположенные с правой стороны. Если Вы устанавливали полноразмерную карту и сняли левую боковую скобу, также верните ее на место.

Установите крышку на место и убедитесь, что защелки зафиксированы.
Mac Pro не сможет запуститься, пока крышка не установлена.

Установите Mac Pro обратно в стойку.
Подсоедините все кабели и шнур питания обратно к Mac Pro.