Bővítőkártyák telepítése a (rackbe épített) Mac Próba
A Mac Prót konfigurálhatja további bővítőkártyák telepítésével a PCI Express-bővítőfoglalatokba.
A foglalatok a Mac Pro alaplapján található PCI Express kapcsolón keresztül csatlakoznak. A PCI Express kapcsoló sávszélessége automatikusan konfigurálásra kerül készletkiosztásokon keresztül. A Bővítőfoglalat segédprogram segítségével manuálisan is konfigurálhatja a készletkiosztásokat. A Bővítőfoglalat segédprogrammal kapcsolatos további információkért tekintse meg az alábbi Apple támogatási cikket: PCIe-kártyák beszerelése a Mac Próba.
Az optimális teljesítmény érdekében olyan foglalatot használjon, amelyik legalább annyi sávval rendelkezik, mint a kártya. A részleteket az alábbi táblázatban találja.
Az Intel-alapú Mac Pro MPX-moduljait nem támogatja az Apple-chippel rendelkező Mac Pro.
Megjegyzés: Ezek a beállítások a rackbe épített, Apple-chippel rendelkező Mac Pro munkaállomáson érhetők el. Ha rackbe épített, Intel-alapú Mac Pro munkaállomással rendelkezik, tekintse meg a Bővítőkártyák telepítése a Mac Próba című leírást. Ha toronyházba épített Mac Pro munkaállomással rendelkezik, tekintse meg a Bővítőkártyák telepítése a Mac Próba című leírást.
Foglalat | Sávok száma | PCI Express támogatás |
|---|---|---|
7. foglalat: | x4 (beszerelt Apple I/O-kártyával) | PCIe 3.0 |
6. foglalat: | x8 | PCIe 4.0 |
5. foglalat: | x8 | PCIe 4.0 |
4. foglalat: | x8 | PCIe 4.0 |
3. foglalat: | x8 | PCIe 4.0 |
2. foglalat: | x16 | PCIe 4.0 |
1. foglalat: | x16 | PCIe 4.0 |
Mac Pro négy dupla szélességű és három egyszeres szélességű bővítőhelyet kínál, az ezekhez csatlakoztatott kártyákkal bővíthetők a Mac Pro képességei. A 7. foglalatba már be van szerelve az Apple I/O-kártya, de ezt a kártyát el lehet távolítani, és beszerelhetők a helyére másik PCIe-kártyák.

FIGYELMEZTETÉS: Az optimális szellőzés érdekében hagyjon helyet a kártyák között a telepítés során. Ha egy kártyát eltávolít, és nem tesz a helyére semmit, helyezzen el egy portnyílás-takaróelemet az üres helyre, hogy ne juthassanak be idegen anyagok a házba. Ha egy nyílás nincs letakarva, az befolyásolja a belső alkatrészeket hűtő légáramlatot, és károsodást okozhat.
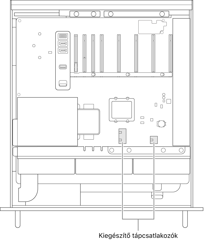
Fontos: A kártyákat a megfelelő tápellátáshoz csatlakoztassa, az alábbi ábrának megfelelően. Kizárólag az apple.com weboldalon vagy az Apple Store-okban árusított vagy a harmadik felek PCIe-kártyáihoz mellékelt kábeleket használjon.
Legyen óvatos, amikor csatlakoztat valamit az AUX-csatlakozókhoz. Amikor olyan alkatrészt telepít, amelyhez AUX-tápellátás szükséges, először csatlakoztassa az AUX-csatlakozót, és ezt követően telepítse a modult. Ügyeljen arra, hogy ne ejtse le a modult amikor az csatlakoztatva van az AUX-csatlakozóhoz, mivel ez az AUX-csatlakozó és az alaplap sérülését okozhatja. Ne kapcsolja be a számítógépet, ha az AUX-csatlakozó megsérült, mivel ez további károsodást okozhat. A Mac Pro javításával kapcsolatos további információkért, lásd: A Mackel kapcsolatos fontos biztonsági tudnivalók.

Kövesse az alábbi lépéseket bővítőkártyák telepítéséhez a Mac Próba.
Kapcsolja ki a Mac Prót az Apple menü
> Kikapcsolás menüpont kiválasztásával.
Hagyja 5-10 percen át lehűlni a számítógépet, mielőtt megérintené a belső alkatrészeket, amelyek forróak lehetnek.
Húzza ki az összes kábelt, kivéve a tápkábelt a Mac Próból.
A sztatikus elektomosság elvezetéséhez érintse meg a Mac Pro külsejének fém részét.
Megjegyzés: Mindig gondoskodjon a sztatikus elektromosság elvezetéséről, mielőtt megérintené az alkatrészeket, vagy bármit telepítene a Mac Pro belsejébe. A sztatikus feltöltődés elkerüléséhez ne sétáljon a helyiségben, amíg nem végzett a bővítőkártyák telepítésével.
Válassza le a tápkábelt.
Csúsztassa ki a Mac Prót a rackből.
Megjegyzés: A bővítőkártyák telepítése közben a Mac Pro a rackben maradhat.
Tolja befelé a reteszeket a burkolat egyik oldalán, majd emelje meg a burkolatot, és csúsztassa le a számítógépről.

Távolítsa el a szükséges oldalsó konzolokat.
Ha kártyát szeretne telepíteni az 1., a 2., a 3. vagy a 4. foglalatba, távolítsa el a jobb alsó részen található oldalsó konzolt.
Ha kártyát szeretne telepíteni az 5., a 6. vagy a 7. foglalatba, távolítsa el a jobb felső részen található oldalsó konzolt.
Ha teljes hosszúságú kártyát szeretne telepíteni, távolítsa el a bal oldalsó konzolt.

Távolítsa el bővítőhely takarólemezeit.

Csúsztassa jobbra a reteszt.

Vegye ki az új kártyát az antisztatikus zacskóból, és fogja meg azt a sarkainál. Ne érintse meg a kártya aranyozott csatlakozóját vagy az alkatrészeket.
Megjegyzés: Csak biztonsági tanúsítvánnyal (CSA, UL vagy ezzel egyenértékű) rendelkező modulokat használjon, amelyek nyilatkozattal rendelkeznek arra vonatkozóan, hogy megfelelnek az iparági PCIe-specifikációknak.
Csúsztassa a kártyát a helyére.

Csúsztassa el a reteszt balra.

Szerelje vissza a jobb oldalsó konzolokat. Ha teljes hosszúságú kártyát telepített és a bal oldalsó konzolt is eltávolította, szerelje vissza a bal oldalsó konzolt is.

Helyezze vissza a burkolatot, és győződjön meg arról, hogy a reteszek megfelelően rögzülnek.
A Mac Pro nem kapcsol be, amíg vissza nem szereli a burkolatot.

Helyezze vissza a Mac Prót a rackbe.
Csatlakoztassa vissza összes kábelt és a tápkábelt a Mac Próhoz.