تركيب بطاقات التوسيع في الـ Mac Pro (وحدة الرفوف)
يمكنك تكوين الـ Mac Pro من خلال تركيب بطاقات إضافية في فتحات توسيع PCI Express.
جميع الفتحات متصلة من خلال مفتاح PCI Express على اللوحة الأم الرئيسية للـ Mac Pro. يتم تكوين النطاق الترددي لمفتاح PCI Express تلقائيًا من خلال تخصيصات المجمع. يمكنك استخدام أداة فتحة التوسيع لتكوين تخصيصات المجمع يدويًا. لمزيد من المعلومات حول أداة فتحة التوسيع، انظر مقال دعم Apple تركيب بطاقات PCIe في الـ Mac Pro.
للحصول على الأداء الأمثل، استخدم أي فتحة تحتوي على عدد الممرات نفسه الموجود في البطاقة المستخدمة على الأقل. راجع الجدول أدناه لمعرفة التفاصيل.
إن وحدات MPX من جهاز Mac Pro يعمل بمعالج Intel غير مدعومة في جهاز Mac Pro مزود برقاقات Apple.
ملاحظة: هذه الخيارات مخصصة لمحطة عمل وحدة رفوف Mac Pro المزود برقاقات Apple. إذا كانت لديك محطة عمل لوحدة رفوف Mac Pro بمعالج Intel، فانظر تركيب بطاقات التوسيع في الـ Mac Pro. إذا كانت لديك محطة عمل لكمبيوتر Mac Pro المكتبي، فانظر تركيب بطاقات التوسيع في الـ Mac Pro.
الفتحة | عدد الممرات | دعم PCI Express |
|---|---|---|
الفتحة 7 | ×4 (مثبتة سابقًا ببطاقة الإدخال/الإخراج من Apple) | PCIe 3.0 |
الفتحة 6 | x8 | PCIe 4.0 |
الفتحة 5 | x8 | PCIe 4.0 |
الفتحة 4 | x8 | PCIe 4.0 |
الفتحة 3 | ×8 | PCIe 4.0 |
الفتحة 2 | x16 | PCIe 4.0 |
الفتحة 1 | x16 | PCIe 4.0 |
يحتوي الـ Mac Pro على أربع فتحات مزدوجة العرض وثلاث فتحات أحادية العرض يمكن تخصيصها ببطاقات لتوسيع إمكانيات الـ Mac Pro. يتم تثبيت الفتحة 7 سابقًا ببطاقة الإدخال/الإخراج من Apple، لكن يمكن إزالة هذه البطاقة لتثبيت بطاقات PCIe الأخرى.

تحذير: لضمان أفضل تهوية، حافظ على مسافات فاصلة بين البطاقات عند تركيبها. وإذا قمت بإزالة بطاقة ولم تركّب واحدة بدلاً منها، فضع غطاء وصول إلى الفتحة فوق الفتحة الفارغة لمنع وصول أي عناصر غريبة إلى داخل الصندوق. عدم تغطية الفتحة قد يتسبب في حدوث تلف من خلال التأثير في تدفق الهواء الذي يبرد المكونات الداخلية.
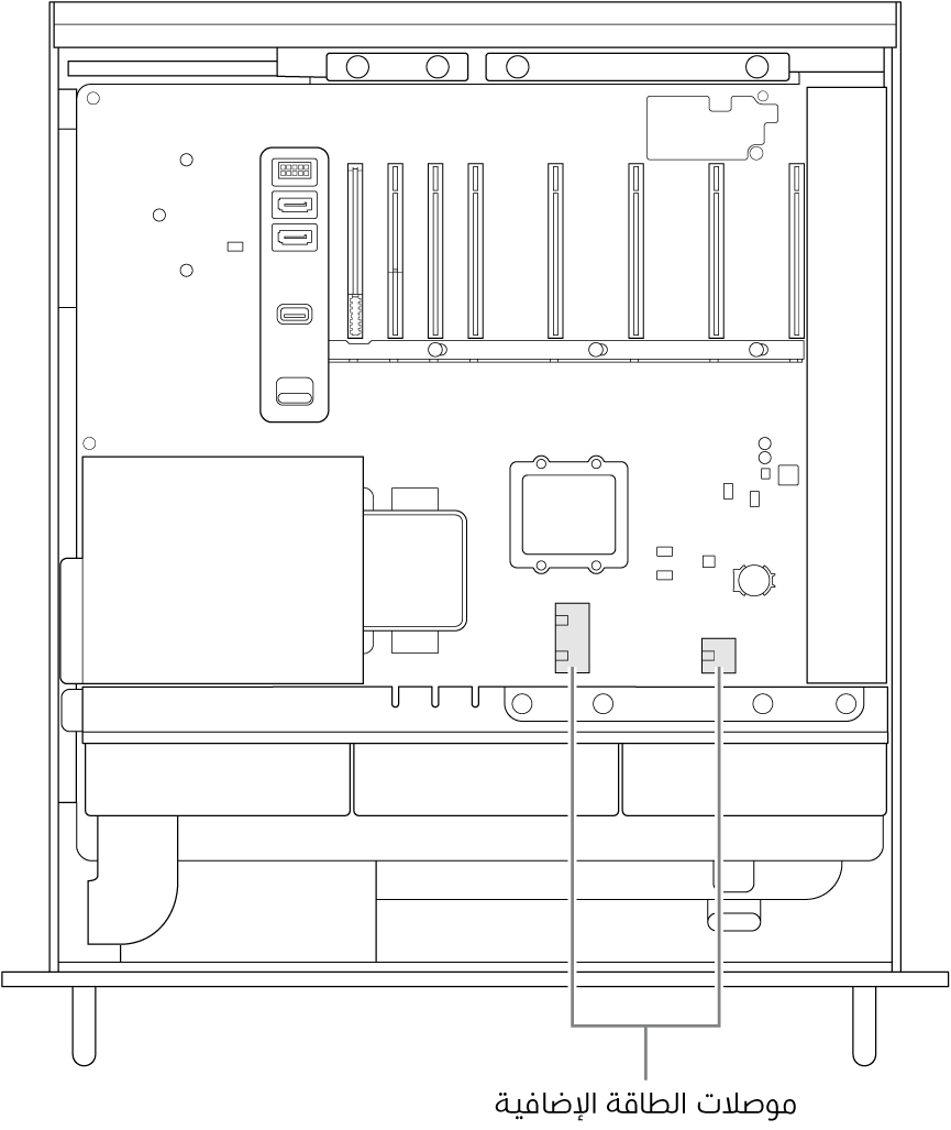
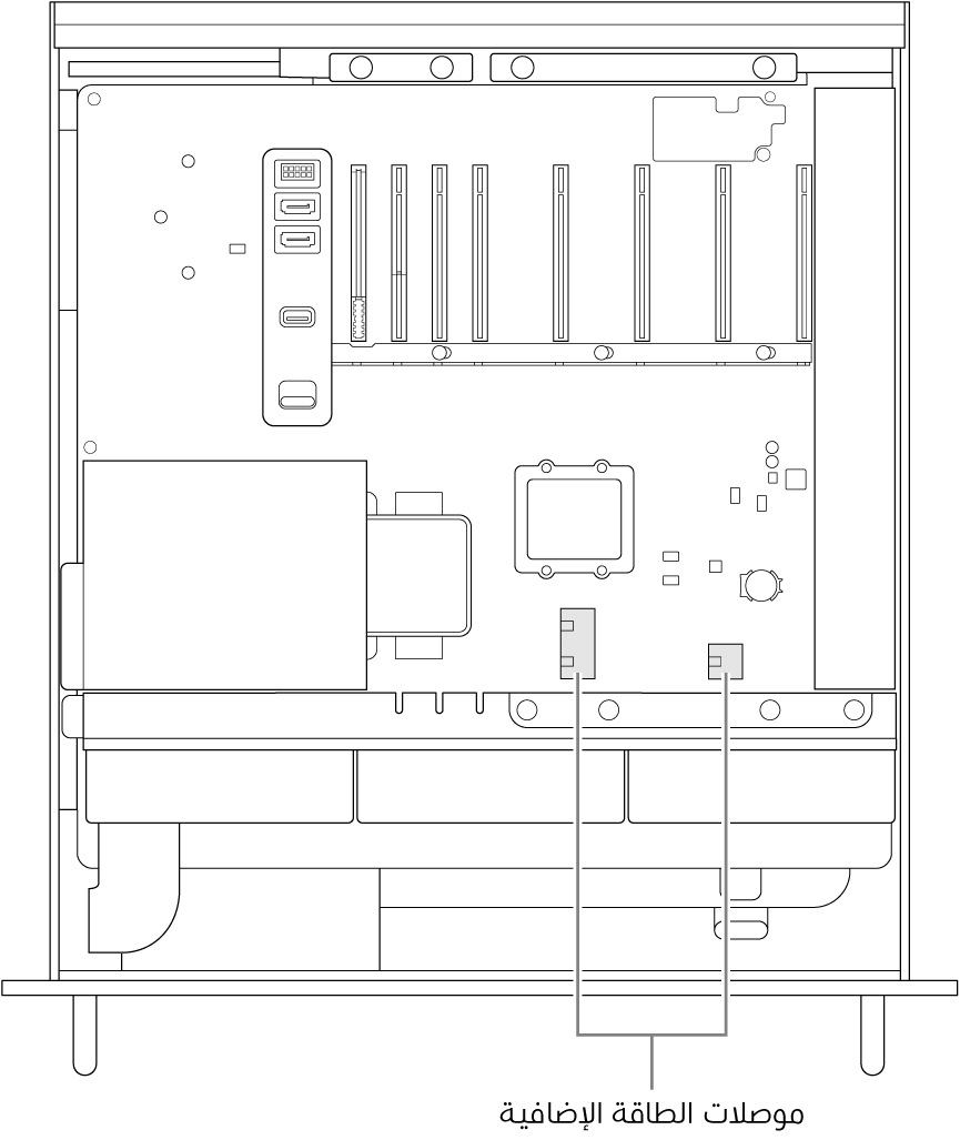
هام: وصّل البطاقات بمصادر الطاقة المناسبة، كما هو موضح أدناه. لا تستخدم إلا الكبلات المُباعة عبر الإنترنت على apple.com أو على Apple Store، أو الكبلات التي ترفق مع بطاقات PCIe المتوافقة من الجهات الخارجية.
يجب توخّي الحذر عند التوصيل بالموصلات المساعدة. عند تثبيت أي ملحق في النظام يستخدم طاقة موصل مساعد، وصّل أولاً الموصل المساعد، ثم ركّب الوحدة النمطية. احترس كي لا تُسقط الوحدة النمطية أثناء توصيلها بالموصل المساعد؛ فقد يؤدي ذلك إلى تلف الموصل المساعد أو اللوحة المنطقية. لا تشغّل الكمبيوتر في حالة تلف الموصل المساعد، لأن ذلك قد يؤدي إلى تلف آخر فيه. لمزيد من المعلومات حول إصلاح الـ Mac Pro، انظر معلومات الأمان المهمة الخاصة بالـ Mac.

اتبع هذه الخطوات لتركيب بطاقات التوسيع في الـ Mac Pro.
قم بإيقاف تشغيل الـ Mac Pro من خلال اختيار قائمة Apple
> إيقاف التشغيل.
دعه يبرد لمدة 5 إلى 10 دقائق قبل لمس المكونات الداخلية؛ فقد تكون ساخنة.
افصل كل الكبلات ما عدا سلك الطاقة من الـ Mac Pro.
المس معدن الهيكل الخارجي للـ Mac Pro لتفريغ أي شحنات كهربائية ستاتيكية.
ملاحظة: احرص دائمًا على تفريغ الشحنة الكهربائية الاستاتيكية قبل لمس أي أجزاء أو تركيب أي مكوّنات داخل الـ Mac Pro. لتجنب توليد شحنة كهربائية استاتيكية، لا تتجول في الحجرة قبل أن تنتهي من تركيب بطاقات التوسيع.
افصل سلك الطاقة.
حرّك الـ Mac Pro إلى خارج وحدة الرفوف.
ملاحظة: يمكنك تركيب بطاقات التوسيع دون إزالة الـ Mac Pro من وحدة الرفوف.
ادفع المزاليج الموجودة في أيٍّ من جانبي الغطاء، ثم ارفع الغطاء وحرّكة بعيدًا عن الكمبيوتر.

أزل الرفوف الجانبية الضرورية.
إذا كنت تقوم بتركيب بطاقة في الفتحة 1 أو 2 أو 3 أو 4، فأزل الرف الجانبي الموجود أسفل اليمين.
إذا كنت تقوم بتركيب بطاقة في الفتحة 5 أو 6 أو 7، فأزل الرف الجانبي الموجود أعلى اليمين.
إذا كنت تقوم بتركيب بطاقة كاملة الطول، فأزل الرف الجانبي الأيسر.

قم بإزالة أغطية الفتحات.

حرّك القفل إلى اليمين.

أخرج البطاقة الجديدة من كيسها المقاوم للكهرباء الاستاتيكية وأمسكها من الزوايا. لا تلمس الموصل الذهبي أو المكوّنات الموجودة في البطاقة.
ملاحظة: لا تستخدم سوى وحدات PCIe النمطية المعتمدة من حيث الأمان (CSA أو UL أو ما شابه) والتي تشير تحديدًا إلى توافقها مع مواصفة PCIe القياسية في هذا المجال.
مرّر البطاقة إلى مكانها.

حرّك القفل إلى اليسار.

أعد تركيب الرفوف الجانبية اليمنى. إذا قمت بتركيب بطاقة كاملة الطول وقمت كذلك بإزالة الرف الجانبي الأيسر، فأعد تركيب الرف الجانبي الأيسر كذلك.

ركّب الغطاء مرة أخرى، مع التأكد من قفل المزاليج.
يتعذر تشغيل الـ Mac Pro حتى تتم إعادة تركيب الغطاء.

قم بإعادة تركيب الـ Mac Pro في وحدة الرفوف.
قم بإعادة توصيل كل الكبلات وسلك الطاقة بالـ Mac Pro.