Встановлення карт розширення в Mac Pro (стелаж)
Ви можете змінювати конфігурацію свого Mac Pro, установлюючи додаткові карти в роз’єми PCI Express.
Усі роз’єми з’єднані через перемикач PCI Express на материнській платі Mac Pro. Ширина смуги перемикача PCI Express конфігурується автоматично через виділення пулу. За допомогою Утиліти слотів розширення можна вручну конфігурувати виділення пулу. Додаткову інформацію про Утиліту слотів розширення читайте в статті служби підтримки Apple Встановлення карток PCIe на Mac Pro.
Для оптимальної швидкодії використовуйте будь-який роз’єм, який має стільки ж ліній, що й карта, яка використовується. Деталі наведено в таблиці нижче.
Модулі MPX від Mac Pro з процесором Intel не підтримуються на Mac Pro на базі процесора Apple.
Примітка. Це опції для робочих станцій Mac Pro на базі процесора Apple, які монтуються в стелаж. Якщо ви користуєтеся робочою станцією Mac Pro на основі процесора Intel, яка монтується в стелаж, перегляньте статтю Встановлення карт розширення в Mac Pro. Якщо ви користуєтеся робочою станцією Mac Pro у вертикальному корпусі, перегляньте статтю Встановлення карт розширення в Mac Pro.
Роз’єм | Кількість ліній | Підтримка PCI Express |
|---|---|---|
Роз’єм 7 | x4 (стандартно карта вводу/виводу від Apple) | PCIe 3.0 |
Роз’єм 6 | x8 | PCIe 4.0 |
Роз’єм 5 | x8 | PCIe 4.0 |
Роз’єм 4 | x8 | PCIe 4.0 |
Роз’єм 3 | x8 | PCIe 4.0 |
Роз’єм 2 | x16 | PCIe 4.0 |
Роз’єм 1 | x16 | PCIe 4.0 |
Mac Pro має чотири роз’єми подвійної ширини й три роз’єми одинарної ширини, за допомогою яких можна розширити можливості Mac Pro. Роз’єм 7 стандартно використовується картою вводу/виводу від Apple, але її можна вилучити, щоб встановити інші карти PCIe.

ЗАСТЕРЕЖЕННЯ. Щоб забезпечити оптимальну вентиляцію, намагайтеся розташовувати карти на відстані одна від одної. Якщо ви виймаєте карту й не збираєтеся використовувати цей роз’єм, установіть кришку порта, щоб усередину корпусу не потрапили сторонні предмети. Незакритий роз’єм може спричинити пошкодження, впливаючи на повітряний потік, який охолоджує внутрішні компоненти.
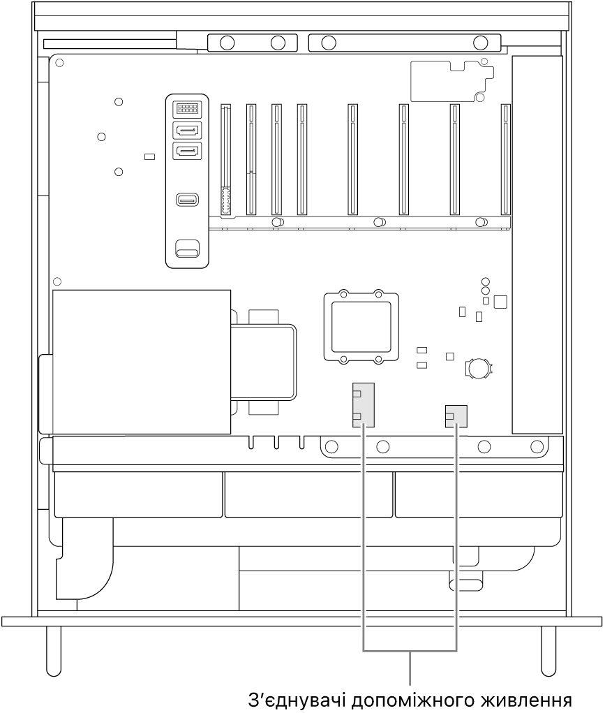
Важливо! Під’єднуйте карти до відповідних джерел живлення згідно із зображенням нижче. Використовуйте лише кабелі, які продаються онлайн на apple.com або в Apple Store, а також кабелі, які входять в комплект сумісних карт PCIe сторонніх виробників.
Будьте обережні, під’єднуючи модулі до з’єднувачів AUX. Якщо ви встановлюєте в систему приладдя, яке потребує додаткового живлення, спершу під’єднайте з’єднувач AUX, а потім встановлюйте модуль. Під’єднавши з’єднувач AUX, добре тримайте модуль, оскільки якщо його впустити, з’єднувач AUX або материнську плату може бути пошкоджено. Якщо з’єднувач AUX пошкоджено, не вмикайте комп’ютер, оскільки це може призвести до пошкодження системи. Додаткову інформацію про ремонт вашого Mac Pro дивіться в розділі Важлива інформація про безпеку використання Mac.

Виконайте наведені нижче вказівки, щоб установити карти розширення у свій Mac Pro.
Вимкніть Mac Pro, вибравши меню Apple
> Вимкнути.
Дайте йому охолонути 5–10 хвилин, перш ніж торкатися внутрішніх компонентів, які можуть бути гарячими.
Від’єднайте всі кабелі, окрім шнура живлення, від Mac Pro.
Торкніться металевої поверхні ззовні Mac Pro, щоб розрядити статичну електрику.
Примітка. Завжди розряджайте статичний заряд, перш ніж торкатися компонентів або встановлювати їх у Mac Pro. Щоб уникнути накопичення статичного заряду, не ходіть кімнатою, поки не завершите встановлення карт розширення.
Від’єднайте шнур живлення.
Вийміть Mac Pro зі стелажа.
Примітка. Ви можете встановлювати карти розширення, не виймаючи Mac Pro зі стелажа.
Натисніть фіксатори з будь-якої сторони кришки, а потім підніміть і посуньте кришку з корпусу комп’ютера.

Зніміть потрібні бокові кронштейни.
Якщо ви встановлюєте карту в роз’єми 1, 2, 3 або 4, зніміть боковий кронштейн справа внизу.
Якщо ви встановлюєте карту в роз’єми 5, 6 або 7, зніміть боковий кронштейн справа вгорі.
Якщо ви встановлюєте карту повної довжини, зніміть лівий боковий кронштейн.

Зніміть кришки роз’ємів.

Посуньте замок праворуч.

Вийміть нову карту з антистатичного пакета та тримайте її за кути. Не торкайтеся золотавих контактів чи компонентів на поверхні карти.
Примітка. Використовуйте лише такі PCIe-модулі, які пройшли безпекову сертифікацію (CSA, UL або еквівалент), і для яких явно зазначено відповідність галузевим стандартам щодо параметрів PCIe.
Вставте карту на місце.

Посуньте замок ліворуч.

Установіть праві бокові кронштейни на місце. Якщо ви встановили карту повної довжини і зняли лівий боковий кронштейн, установіть його на місце також.

Установіть кришку на місце та обов’язково замкніть фіксатори.
Mac Pro не може запуститися, поки кришку не буде встановлено на місце.

Установіть Mac Pro назад у стелаж.
Під’єднайте шнур живлення та всі інші кабелі до Mac Pro.