Instalarea cardurilor de extensie în Mac Pro (rack)
Vă puteți configura Mac Pro-ul prin instalarea de carduri suplimentare în sloturile de extensie PCI Express.
Toate sloturile sunt conectate printr-un comutator PCI Express de pe placa logică principală a Mac Pro-ului. Lungimea de bandă a comutatorului PCI Express este configurată automat prin alocări în grup. Puteți utiliza Utilitar Slot de extensie pentru a configura manual alocările în grup. Pentru mai multe informații despre Utilitar Slot de extensie, consultați articolul de asistență Apple Instalarea cardurilor PCIe pe Mac Pro.
Pentru performanțe optime, utilizați orice slot care are cel puțin același număr de benzi ca și cardul în uz. Pentru detalii, consultați tabelul de mai jos.
Modulele MPX de pe Mac Pro-urile cu procesor Intel nu sunt compatibile cu Mac Pro-urile cu cip Apple.
Notă: Aceste opțiuni sunt pentru stația de lucru Mac Pro de tip rack cu cip Apple. Dacă aveți o stație de lucru Mac Pro de tip rack cu procesor Intel, consultați Instalarea cardurilor de extensie în Mac Pro. Dacă aveți o stație de lucru Mac Pro de tip turn, consultați Instalarea cardurilor de extensie în Mac Pro.
Slot  | Număr de benzi  | Compatibilitate PCI Express  | 
|---|---|---|
Slot 7  | x4 (preinstalat cu placa Apple I/O)  | PCIe 3.0  | 
Slot 6  | x8  | PCIe 4.0  | 
Slot 5  | x8  | PCIe 4.0  | 
Slot 4  | x8  | PCIe 4.0  | 
Slot 3  | x8  | PCIe 4.0  | 
Slot 2  | x16  | PCIe 4.0  | 
Slot 1  | x16  | PCIe 4.0  | 
Mac Pro are patru sloturi de lungime dublă și trei sloturi de lungime simplă, care pot fi personalizate cu carduri, pentru extinderea capacității Mac Pro-ului. Slotul 7 este preinstalat cu placa Apple I/O, dar această placă poate fi eliminată pentru a se instala alte carduri PCIe.

AVERTISMENT: Pentru aerisire optimă, distanțați cardurile pe măsură ce le instalați. Dacă eliminați un card și nu instalați unul care să îl înlocuiască, plasați o carcasă la accesul la port în slotul gol pentru a evita intrarea obiectelor străine. Un slot neacoperit poate cauza probleme prin acoperirea fluxului de aer care răcește componentele interne.
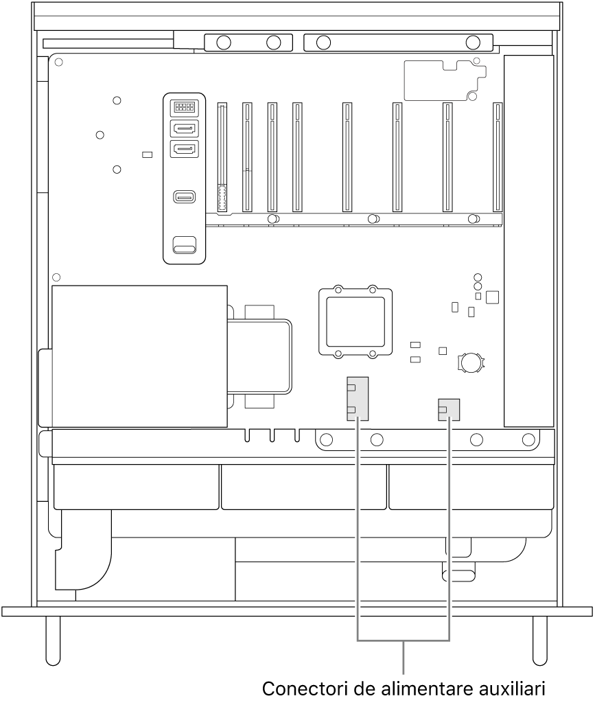
Important: Conectați cardurile la sursa de alimentare corespunzătoare, conform ilustrației de mai jos. Utilizați doar cabluri vândute online pe apple.com sau la un magazin Apple Store sau cablurile care sunt incluse cu plăcile PCIe compatibile terțe.
Aveți grijă când efectuați conexiunea la conectorii AUX. Atunci când instalați un accesoriu în sistemul dvs. care utilizează alimentarea AUX, atașați mai întâi conectorul AUX, apoi instalați modulul. Aveți grijă să nu scăpați modulul în timpul conectării la conectorul AUX, deoarece se poate deteriora conectorul AUX sau placa logică. Dacă este deteriorat conectorul AUX, nu alimentați computerul deoarece acest lucru poate cauza și mai multe probleme. Pentru mai multe informații despre repararea Mac Pro-ului, consultați Informații importante despre siguranță pentru Mac-ul dvs..

Urmați acești pași pentru a instala cardurile de extensie în Mac Pro-ul dvs.
Opriți Mac Pro-ul alegând meniul Apple
 > Opriți computerul.
Așteptați 5-10 minute să se răcească înainte de a atinge componentele interne, care pot fi fierbinți.
Deconectați toate cablurile cu excepția cablului de alimentare de la Mac Pro.
Atingeți metalul din afara Mac Pro-ului pentru a descărca electricitatea statică.
Notă: Descărcați întotdeauna electricitatea statică înainte de a atinge piesele sau a instala componentele în interiorul Mac Pro-ului. Pentru a evita generarea electricității statice, nu vă deplasați prin cameră până nu terminați de instalat cardurile de extensie.
Deconectați cablul de alimentare.
Glisați Mac Pro-ul afară din rack.
Notă: Puteți instala carduri de extensie cât timp Mac Pro-ul rămâne instalat în rack.
Apăsați spre interior lacătele de pe ambele părți ale carcasei, apoi ridicați carcasa și glisați-o de pe computer.

Eliminați consolele de fixare laterale necesare.
Dacă instalați o placă în Sloturile 1, 2, 3 sau 4, eliminați consola de fixare laterală din dreapta jos.
Dacă instalați o placă în Sloturile 5, 6 sau 7, eliminați consola de fixare laterală din dreapta sus.
Dacă instalați o placă de lungime completă, eliminați consola de fixare laterală din stânga.

Scoateți carcasele slotului.

Glisați lacătul la dreapta.

Scoateți noul card din punga antistatică și țineți-l de colțuri. Nu atingeți conectorul auriu sau componentele de pe card.
Notă: Utilizați doar module PCIe cu certificate de siguranță (CSA, UL sau echivalent) și pentru care se specifică faptul că respectă specificațiile standard din domeniu pentru PCIe.
Glisați cardul pentru a-l fixa.

Glisați lacătul la stânga.

Reinstalați consolele de fixare din dreapta. Dacă ați instalat o placă de lungime completă și ați eliminat, de asemenea, consola de fixare laterală din stânga, reinstalați și consola de fixare laterală din stânga.

Reinstalați carcasa, asigurându-vă că lacătele se blochează.
Mac Pro-ul nu poate porni până când capacul nu a fost reinstalat.

Așezați Mac Pro-ul înapoi în rack.
Reconectați toate cablurile și cablul de alimentare la Mac Pro.