Uitbreidingskaarten installeren in de Mac Pro (rackmodel)
Je kunt je Mac Pro configureren door extra kaarten in de PCI Express-uitbreidingssleuven te installeren.
Alle sleuven zijn verbonden via een PCI Express-switch op de hoofdprintplaat van de Mac Pro. De bandbreedte van de PCI Express-switch wordt automatisch geconfigureerd via groepstoewijzingen. Met Uitbreidingssleufprogramma kun je groepstoewijzingen handmatig configureren. Zie het Apple Support-artikel PCIe-kaarten installeren in de Mac Pro voor meer informatie over Uitbreidingssleufprogramma.
Gebruik voor optimale prestaties een sleuf die minimaal evenveel lanes (kanalen) heeft als de kaart die je gebruikt. Zie de volgende tabel voor details.
MPX-modules van de Mac Pro met Intel-processor worden niet ondersteund in de Mac Pro met Apple silicon.
Opmerking: Deze opties zijn van toepassing op de Mac Pro (rackmodel) met Apple silicon. Zie Uitbreidingskaarten installeren in de Mac Pro als je een Mac Pro (rackmodel) met Intel-processor hebt. Zie Uitbreidingskaarten installeren in de Mac Pro als je een torenmodel van de Mac Pro hebt.
Sleuf | Aantal lanes | PCI Express-ondersteuning |
|---|---|---|
Sleuf 7 | x4 (met reeds geïnstalleerde Apple I/O-kaart) | PCIe 3.0 |
Sleuf 6 | x8 | PCIe 4.0 |
Sleuf 5 | x8 | PCIe 4.0 |
Sleuf 4 | x8 | PCIe 4.0 |
Sleuf 3 | x8 | PCIe 4.0 |
Sleuf 2 | x16 | PCIe 4.0 |
Sleuf 1 | x16 | PCIe 4.0 |
De Mac Pro heeft vier dubbelbrede kaartsleuven en drie enkelbrede kaartsleuven waarmee de capaciteiten van de Mac Pro kunnen worden uitgebreid. In sleuf 7 is de Apple I/O-kaart reeds geïnstalleerd, maar deze kaart kan worden verwijderd om een andere PCIe-kaart te plaatsen.

WAARSCHUWING: Plaats kaarten zo ver mogelijk uit elkaar om voor een optimale ventilatie te zorgen. Als je een kaart verwijdert, maar op die plek geen vervangende kaart installeert, plaats dan een afdekplaatje in de lege sleuf om te voorkomen dat vreemde voorwerpen in de behuizing terechtkomen. Een onafgedekte sleuf heeft ook invloed op de luchtstroom die de interne componenten moet koelen en kan daardoor schade veroorzaken.
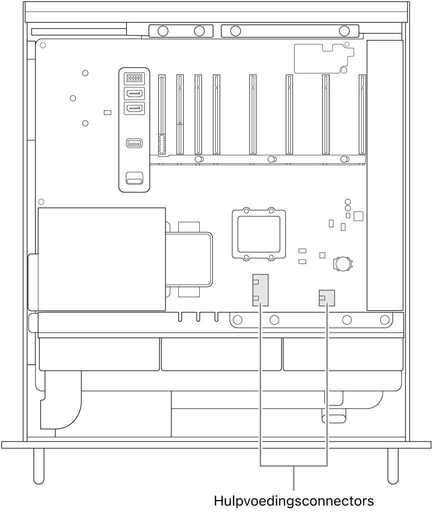
Belangrijk: Sluit kaarten op de juiste voedingsbron aan, zoals hieronder wordt aangegeven. Gebruik alleen kabels die online op apple.com/nl of in een Apple Store worden verkocht, of kabels die bij compatibele PCIe-kaarten van andere merken worden meegeleverd.
Wees voorzichtig bij de aansluiting op de AUX-connectors. Als je een accessoire in je systeem installeert dat AUX-voeding nodig heeft, sluit je eerst de AUX-connector aan en installeer je daarna de module. Wees voorzichtig en zorg dat je de module niet laat vallen terwijl deze op de AUX-connector is aangesloten, want daardoor kan de AUX-connector of de printplaat beschadigd raken. Als de AUX-connector beschadigd raakt, mag je de computer niet inschakelen, want dat kan tot verdere schade leiden. Zie Belangrijke veiligheidsinformatie voor de Mac voor meer informatie over het repareren van de Mac Pro.

Volg deze stappen voor het installeren van uitbreidingskaarten in de Mac Pro.
Schakel de Mac Pro uit via Apple-menu
> 'Zet uit'.
Laat het systeem 5 tot 10 minuten afkoelen voordat je de interne componenten aanraakt. Deze kunnen namelijk heet zijn.
Koppel alle kabels behalve het netsnoer van de Mac Pro los.
Raak het metaal aan de buitenkant van de Mac Pro aan om eventuele statische elektriciteit te ontladen.
Opmerking: Laat altijd statische elektriciteit ontladen voordat je componenten in de Mac Pro aanraakt of installeert. Voorkom de opbouw van statische elektriciteit door niet in de kamer rond te lopen totdat je klaar bent met het installeren van de uitbreidingskaarten.
Koppel het netsnoer los.
Schuif de Mac Pro uit het rack.
Opmerking: Je kunt uitbreidingskaarten installeren terwijl de Mac Pro in het rack geïnstalleerd blijft.
Druk de hendels aan weerszijden van de afdekking in, til vervolgens de afdekking op en schuif deze van de computer.

Verwijder de noodzakelijke zijstrippen.
Als je een kaart in sleuf 1, 2, 3 of 4 installeert, verwijder je de zijstrip rechtsonder.
Als je een kaart in sleuf 5, 6 of 7 installeert, verwijder je de zijstrip rechtsboven.
Als je een kaart van volledige lengte installeert, verwijder je de linkerzijstrip.

Verwijder de sleufafdekkingen.

Schuif de vergrendeling naar rechts.

Haal de nieuwe kaart uit de antistatische zak en houd de kaart bij de hoeken vast. Raak de gouden connector of de componenten op de kaart niet aan.
Opmerking: Gebruik uitsluitend PCIe-modules met een veiligheidskeurmerk (CSA, UL of gelijkwaardig) en waarvoor specifiek wordt aangegeven dat ze aan de standaard-PCIe-specificatie voldoen.
Schuif de kaart op zijn plaats.

Schuif de vergrendeling naar links.

Plaats de rechterzijstrippen terug. Als je een kaart van volledige lengte hebt geïnstalleerd en ook de linkerzijstrip hebt verwijderd, plaats je deze ook terug.

Plaats de afdekking terug en controleer of de hendels vergrendeld zijn.
De Mac Pro kan pas opstarten nadat de behuizing is teruggeplaatst.

Plaats de Mac Pro terug in het rack.
Sluit alle kabels en het netsnoer van de Mac Pro weer aan.