התקנת כרטיסי הרחבה ב-Mac Pro (מערכת מידוף)
ניתן לקבוע את התצורה של ה-Mac Pro על-ידי התקנת כרטיסים נוספים בחריצי ההרחבה מסוג PCI Express.
כל החריצים מחוברים באמצעות מתג PCI Express בלוח הלוגי הראשי של ה-Mac Pro. רוחב הפס של מתגי PCI Express מוגדר אוטומטית דרך הקצאת מאגרים. ניתן להשתמש ב״כלי חריץ הרחבה״ כדי להגדיר הקצאת מאגרים באופן ידני. למידע נוסף על ״כלי חריץ ההרחבה״, יש לעיין במאמר מחלקת התמיכה של Apple התקנת כרטיסי PCIe ב-Mac Pro.
לביצועים אופטימליים, יש להשתמש בכל חריץ המכיל לפחות את מספר המסלולים שיש לכרטיס שבו נעשה שימוש. ראה/י את הטבלה שלהלן לפרטים נוספים.
מודולי MPX מ-Mac Pro מבוסס Intel אינם נתמכים ב-Mac Pro עם Apple silicon.
הערה: אפשרויות אלה נועדו לעמדת עבודה של Mac Pro במערכת מידוף עם Apple silicon. אם יש לך עמדת עבודה של Mac Pro מבוסס Intel במערכת מידוף, יש לעיין בפרק התקנת כרטיסי הרחבה ב-Mac Pro. אם יש לך תחנת עבודה של Mac Pro במגדל, יש לעיין בפרק התקנת כרטיסי הרחבה ב-Mac Pro.
חריץ | מספר מסלולים | תמיכה ב-PCI Express |
|---|---|---|
חריץ 7 | x4 (מותקן מראש עם כרטיס קלט/פלט של Apple) | PCIe 3.0 |
חריץ 6 | x8 | PCIe 4.0 |
חריץ 5 | x8 | PCIe 4.0 |
חריץ 4 | x8 | PCIe 4.0 |
חריץ 3 | x8 | PCIe 4.0 |
חריץ 2 | x16 | PCIe 4.0 |
חריץ 1 | x16 | PCIe 4.0 |
Mac Pro כולל ארבעה חריצים ברוחב כפול ושלושה חריצים ברוחב בודד, שניתן להתאים אישית בעזרת כרטיסים על-מנת להרחיב את יכולות ה-Mac Pro. בחריץ 7 מותקן מראש כרטיס קלט/פלט של Apple, אך ניתן להסיר כרטיס זה על מנת להתקין כרטיסי PCIe אחרים.

אזהרה: לאוורור מיטבי, יש לשמור על רווחים בין הכרטיסים בעת התקנתם. אם הסרת כרטיס ולא התקנת כרטיס חלופי, עליך להניח כיסוי גישת יציאה מעל החריץ הריק על-מנת להרחיק חפצים זרים מהפתח. חריץ לא מכוסה עשוי להשפיע על זרימת האוויר שמצנן את הרכיבים הפנימיים ועלול לגרום לנזק.
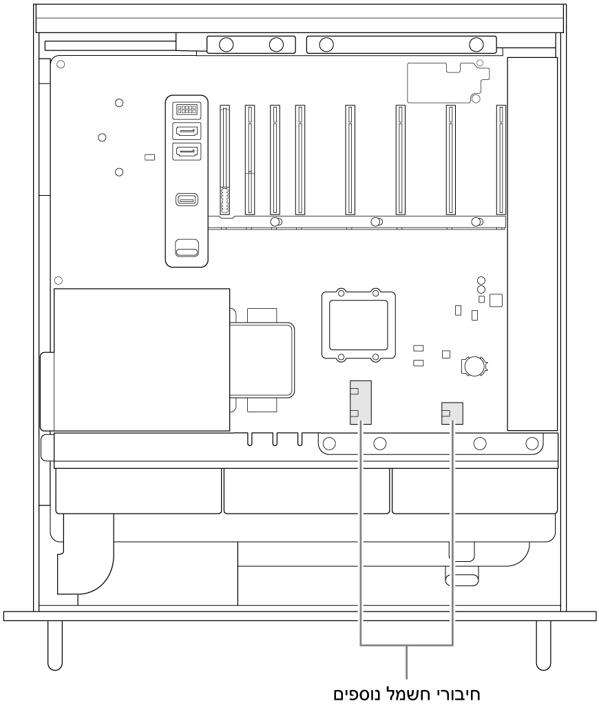
חשוב: יש לחבר כרטיסים למקור החשמל המתאים, כמתואר להלן. יש להשתמש רק בכבלים הנמכרים באופן מקוון ב-apple.com או ב-Apple Store, או בכבלים המגיעים עם כרטיסי PCIe תואמים של צד שלישי.
יש לנקוט זהירות בעת החיבור למחברי AUX. בעת התקנת אביזר בתוך המערכת המשתמש במתח AUX, יש לחבר תחילה את מחבר ה-AUX, ואז להתקין את המודול. יש להיזהר לא להפיל את המודול בעת החיבור למחבר ה-AUX; הפלתו עלולה להזיק למחבר ה-AUX או ללוח הלוגי. אם מחבר ה-AUX יינזק, אין להפעיל את המחשב מאחר שפעולה זו עלולה להזיק לו עוד יותר. למידע נוסף על קישור מחדש של ה-Mac Pro, מומלץ לעיין בפרק מידע חשוב בנושא בטיחות בעת השימוש ב-Mac.

יש לבצע את השלבים הבאים על-מנת להתקין כרטיסי הרחבה ב-Mac Pro.
כדי לכבות את ה-Mac Pro, יש לבחור בתפריט Apple
> ״כיבוי״.
יש להניח למחשב להתקרר במשך חמש עד עשר דקות לפני מגע בחלקים פנימיים; הם עלולים להיות חמים מאוד.
נתק/י מה‑Mac Pro את כל הכבלים חוץ מאת כבל החשמל.
יש לגעת במתכת בחלק החיצוני של ה-Mac Pro על-מנת לפרוק חשמל סטטי.
הערה: יש לפרוק תמיד חשמל סטטי לפני מגע בחלקים או התקנת רכיבים בתוך ה-Mac Pro. על-מנת להימנע מיצירת חשמל סטטי, אין להתהלך בחדר עד להשלמת ההתקנה של כרטיסי ההרחבה.
יש לנתק את כבל החשמל.
החלק/י החוצה את Mac Pro ממערכת המידוף.
הערה: ניתן להתקין כרטיסי הרחבה כש-Mac Pro נשאר מותקן במערכת המידוף.
יש לדחוף את התפסים בכל צד של המכסה, ואז להרים את המכסה ולהסיר אותו בהחלקה מהמחשב.

יש להסיר את תושבות הצד נדרשות.
בהתקנת כרטיס בחריץ 1, 2, 3 או 4, יש להסיר את תושבת הצד מצד ימין למטה.
בהתקנת כרטיס בחריץ 5, 6 או 7, יש להסיר את תושבת הצד מצד ימין למעלה.
בהתקנת כרטיס באורך מלא, יש להסיר את תושבת מצד שמאל.

הסר/י את מכסי החריצים.

החלק/י את מנגנון הנעילה ימינה.

יש להוציא את הכרטיס החדש מהעטיפה המבודדת חשמל סטטי ולהחזיק אותו בפינות. אין לגעת במחבר הזהב או ברכיבים שבכרטיס.
הערה: יש להשתמש אך ורק במודולי PCIe שבטיחותם מאושרת (CSA, UL או שווה ערך) ושמצהירים במפורש שהם תואמים למפרט ה-PCIe הנהוג בתעשייה.
החלק/י את הכרטיס למקומו.

החלק/י את מנגנון הנעילה שמאלה.

התקנה מחדש של התושבות בצד ימין. אם התקנת כרטיס באורך מלא ואף הסרת את התושבת בצד שמאל, יש להתקין אותה מחדש.

התקן/י מחדש את המכסה, וודא/י את נעילת התפסים.
לא ניתן להפעיל את ה-Mac Pro עד להתקנה מחדש של המכסה.

התקן/י מחדש את Mac Pro במערכת המידוף.
חבר/י מחדש את כל הכבלים ואת כבל החשמל ל‑Mac Pro.