Installer udvidelseskort i Mac Pro (Rack)
Du kan konfigurere Mac Pro ved at installere flere kort i PCI Express-udvidelsespladserne.
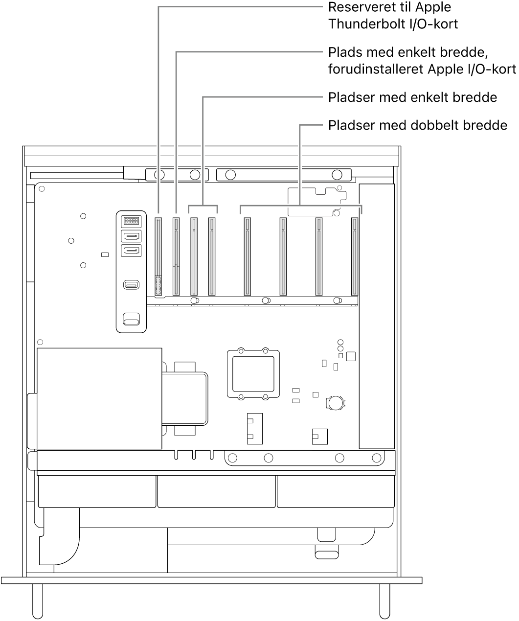
Alle pladser tilsluttes via en PCI Express-kontakt på hovedkortet i Mac Pro. PCI Express-kontaktens båndbredde konfigureres automatisk via gruppetildelinger. Du kan bruge Værktøj til udvidelsesplads til at konfigurere gruppetildelinger manuelt. Der findes flere oplysninger om Værktøj til udvidelsesplads i Apple-supportartiklen Installer PCIe-kort i din Mac Pro.
For at opnå optimal ydeevne bør du bruge en plads med mindst lige så mange baner som det kort, der bruges. Der er flere oplysninger i tabellen nedenfor.
MPX-moduler fra en Intel-baseret Mac Pro understøttes ikke i Mac Pro med Apple Silicon.
Bemærk: Disse muligheder gælder for Mac Pro-rackarbejdsstationen med Apple Silicon. Se Installer udvidelseskort i Mac Pro, hvis du har en Intel-baseret Mac Pro-rackarbejdsstation. Se Installer udvidelseskort i Mac Pro, hvis du har en Mac Pro-towerarbejdsstation.
Kortplads | Antal baner | PCI Express-understøttelse |
|---|---|---|
Plads 7 | x4 (præinstalleret med Apple I/O-kort) | PCIe 3.0 |
Plads 6 | x8 | PCIe 4.0 |
Plads 5 | x8 | PCIe 4.0 |
Plads 4 | x8 | PCIe 4.0 |
Plads 3 | x8 | PCIe 4.0 |
Plads 2 | x16 | PCIe 4.0 |
Plads 1 | x16 | PCIe 4.0 |
Mac Pro har fire pladser i dobbelt bredde og tre pladser i enkelt bredde, hvor der kan installeres kort for at udvide funktionaliteten af Mac Pro. Plads 7 er præinstalleret med Apple I/O-kortet, men dette kort kan fjernes, hvis du ønsker at installere andre PCIe-kort.

ADVARSEL: Installer kort med afstand til hinanden for at optimere ventilationen. Hvis du fjerner et kort uden at isætte et andet, skal du anbringe et dæksel over den tomme plads for at holde fremmedlegemer væk fra åbningen. En utildækket plads kan gøre skade ved at påvirke luftstrømmen, der afkøler de indvendige komponenter.
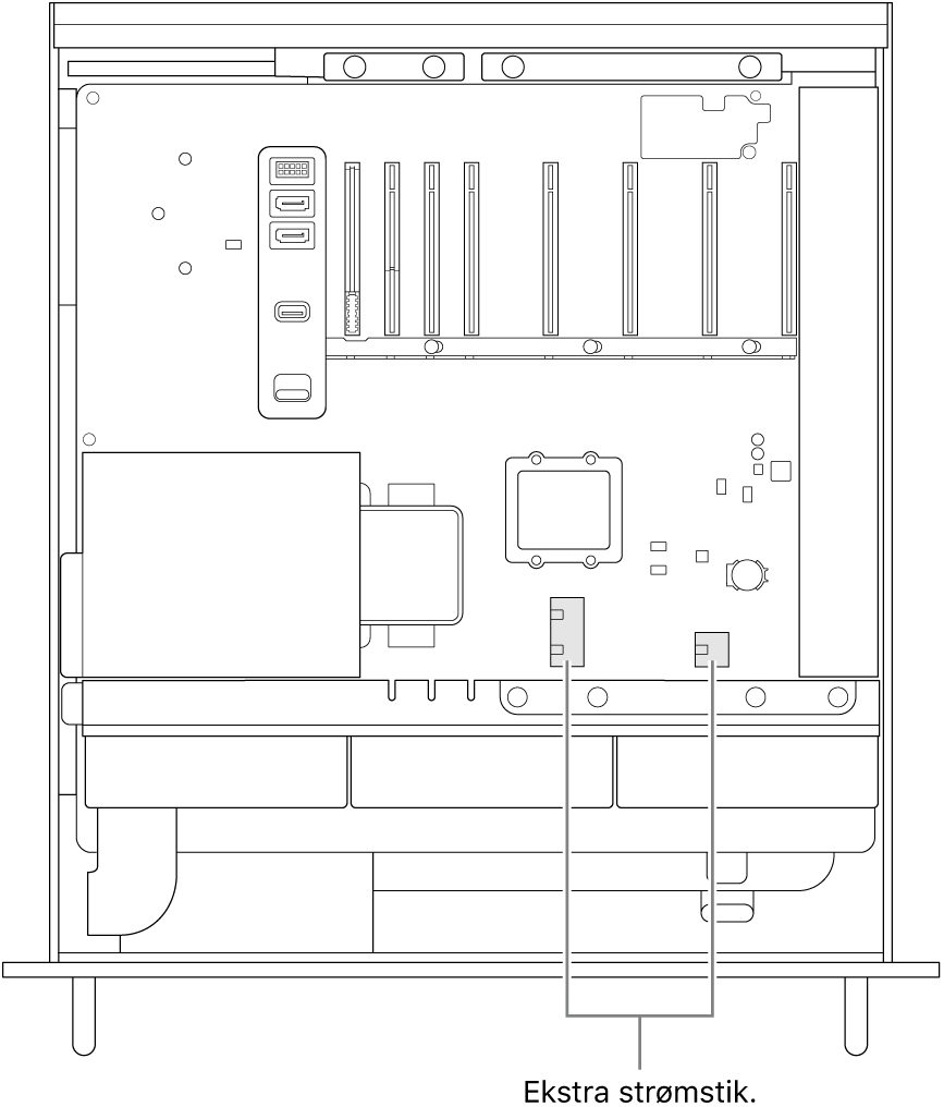
Vigtigt: Slut kort til den rigtige strømkilde som vist nedenfor. Brug kun kabler, der sælges online på apple.com eller i Apple Store, eller kabler, der følger med kompatible PCIe-kort fra tredjeparter.
Vær forsigtig ved tilslutning til AUX-stikkene. Når du installerer tilbehør, der bruger AUX-strøm, i systemet, skal du først tilslutte AUX-stikket og derefter installere modulet. Pas på, at du ikke taber modulet, mens det er sluttet til AUX-stikket, da det kan beskadige AUX-stikket eller hovedkortet. Hvis AUX-stikket bliver beskadiget, skal du undlade at tænde computeren, da det kan forværre skaden på den. Du kan få flere oplysninger om reparation af din Mac Pro i Vigtige sikkerhedsoplysninger til din Mac.

Brug følgende fremgangsmåde til at installere udvidelseskort i Mac Pro.
Sluk Mac Pro ved at vælge Apple
> Luk ned.
Lad den køle af i 5-10 minutter, før du rører ved de indvendige komponenter, som kan være varme.
Afmonter alle kabler med undtagelse af netledningen fra Mac Pro.
Rør ved metallet uden på Mac Pro for at aflede statisk elektricitet.
Bemærk: Afled altid statisk elektricitet, før du rører ved dele eller installerer komponenter inden i Mac Pro. Undgå at bevæge dig rundt i lokalet og derved skabe statisk elektricitet, før du er færdig med at installere udvidelseskortene.
Tag netledningen ud.
Skub Mac Pro ud af racket.
Bemærk: Du kan installere udvidelseskort, mens Mac Pro er installeret i racket.
Skub låsene på begge sider af dækslet ind, og løft derefter dækslet og skub det af computeren.

Fjern de nødvendige sidebeslag.
Hvis du installerer et kort i plads 1, 2, 3 eller 4, skal du fjerne sidebeslaget nederst til højre.
Hvis du installerer et kort i plads 5, 6 eller 7, skal du fjerne sidebeslaget øverst til højre.
Hvis du installerer et kort i fuld længde, skal du fjerne det venstre sidebeslag.

Fjern dækslerne over pladserne.

Skub låsen til højre.

Tag det nye kort ud af den antistatiske pose, og hold det i hjørnerne. Rør ikke ved det gyldne stik eller komponenterne på kortet.
Bemærk: Brug kun PCIe-moduler med en sikkerhedscertificering (CSA, UL eller tilsvarende) og en direkte tilkendegivelse af, at de overholder den PCIe-specifikation, der er standard i branchen.
Skub kortet ind på plads.

Skub låsen til venstre.

Monter de højre sidebeslag igen. Hvis du har installeret et kort i fuld længde og også fjernede det venstre sidebeslag, skal du ligeledes montere det venstre sidebeslag igen.

Sæt dækslet på igen, og kontroller, at låsene bliver låst.
Mac Pro kan ikke starte, før dækslet er sat på igen.

Installer Mac Pro i racket igen.
Sæt alle kabler og netledningen i Mac Pro igen.