Инсталиране на разширителни карти в Mac Pro (за вграждане)
Можете да конфигурирате вашия Mac Pro, като инсталирате допълнителни карти в разширителните слотове PCI Express.
Всички слотове са свързани чрез PCI Express превключвател на основната логическа платка в Mac Pro. Ширината на лентата на PCI Express превключвателя се конфигурира автоматично чрез разпределение на пулове. Можете да използвате Expansion Slot Utility (Помагало за разширителни слотове) за автоматично конфигуриране на разпределението на пулове. За повече информация относно Expansion Slot Utility (Помагало за разширителни слотове) вижте статията на Apple Support Install PCIe cards in your Mac Pro (Инсталиране на PCIe карти във вашия Mac Pro).
За оптимална производителност използвайте слот, който има поне толкова ленти, колкото използваната карта. Вижте подробности в долната таблица.
MPX модули от Intel базирания Mac Pro не се поддържат в Mac Pro с Apple silicon.
Забележка: Тези опции са за работната станция за вграждане Mac Pro с Apple silicon. Ако имате работна станция за вграждане Intel базиран Mac Pro, вижте Install Expansion Cards in Mac Pro (Инсталиране на разширителни карти в Mac Pro). Ако имате работна станция с вертикален модел Mac Pro, вижте Install Expansion Cards in Mac Pro (Инсталиране на разширителни карти в Mac Pro).
| Слот | Брой писти | Поддръжка на PCI Express | 
|---|---|---|
| Слот 7 | x4 (Предварително инсталиран с картата Apple I/O (В/И)) | PCIe 3.0 | 
| Слот 6 | x8 | PCIe 4.0 | 
| Слот 5 | x8 | PCIe 4.0 | 
| Слот 4 | x8 | PCIe 4.0 | 
| Слот 3 | x8 | PCIe 4.0 | 
| Слот 2 | x16 | PCIe 4.0 | 
| Слот 1 | x16 | PCIe 4.0 | 
Mac Pro разполага с четири двойни слота и три единични слота, които могат да бъдат персонализирани с карти, с които да разширите възможностите на Mac Pro. Слот 7 е предварително инсталиран с картата Apple I/O (В/И), но тази карта може да бъде извадена, за да се инсталират други PCIe карти.

ПРЕДУПРЕЖДЕНИЕ: За оптимално обдухване, оставяйте пространство между картите, когато ги инсталирате. Ако извадите карта и не инсталирате друга, поставете капак за портове върху празния слот, за да предотвратите чужди обекти да попаднат в заграждението. Непокритият слот може да причини повреда, като повлияе върху потока на въздух, който охлажда вътрешните компоненти.
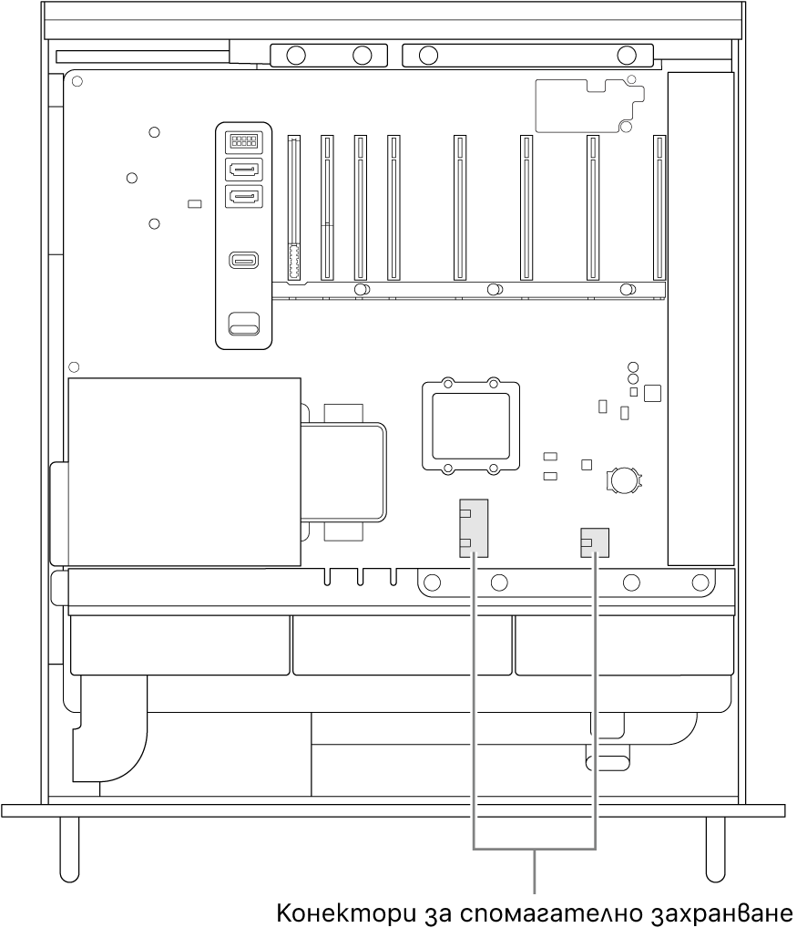
Важно: Свързвайте карти към подходящите източници на захранване, както е показано по-долу. Използвайте само кабели, които се продават онлайн на apple.com или от магазин Apple Store, или кабели, които се предлагат със съвместими PCIe карти на други производители.
Бъдете внимателни, когато свързвате AUX куплунзите. Когато във вашата система инсталирате аксесоар, който използва AUX захранване, първо свържете AUX куплунга и след това инсталирайте модула. Бъдете внимателни да не изпуснете модула, докато е свързан към AUX куплунга, защото това може да повреди AUX куплунга или дънната платка. Ако AUX куплунгът се повреди, не включвайте вашия компютър, защото това може да доведе до допълнителни повреди. За повече информация относно попряването на вашия Mac Pro вижте Важна информация за безопасност за вашия Mac.

Следвайте тези стъпки, за да инсталирате разширителни карти във вашия Mac Pro.
- Изключете вашия Mac Pro, като изберете меню Apple  - Оставете го да се охлади за 5 до 10 минути, преди да докосвате вътрешните компоненти, защото може да са горещи. 
- Премахнете всички кабели, освен захранващия кабел, от вашия Mac Pro. 
- Докоснете метала от външната страна на вашия Mac Pro, за да премахнете всякакво статично електричество. - Забележка: Винаги премахвайте статичното електричество, преди да докосвате части или да инсталирате компоненти във вашия Mac Pro. За да избегнете генерирането на статично електричество, не се разхождайте в стаята, докато не свършите с инсталирането на разширителните карти. 
- Изключете захранващия кабел. 
- Изтеглете Mac Pro извън рафта. - Забележка: Можете да инсталирате разширителни карти, докато Mac Pro е монтиран на рафта. 
- Натиснете навътре ключалките от двете страни на капака и после го повдигнете и го плъзнете извън компютъра.  
- Извадете необходимите странични скоби. - Ако инсталирате карта в Слотове 1, 2, 3 или 4, махнете страничната скоба долу вдясно. 
- Ако инсталирате карта в Слотове 5, 6 или 7, махнете страничната скоба горе вдясно. 
- Ако инсталирате карта с пълна дължина, махнете лявата странична скоба. 
  
- Извадете капаците на слотовете.  
- Плъзнете ключалката надясно.  
- Извадете новата карта от калъфа й, който я предпазва от статично електричество, и я дръжте за ъглите. Не докосвайте златния куплунг или компнонентите на картата. - Забележка: Използвайте само PCIe модули, които имат сертификат за безопасност (CSA, UL или еквивалентен), и изрично посочват, че отговарят на характеристиките на индустриалния стандарт за PCIe. 
- Плъзнете картата на мястото й.  
- Плъзнете ключалката наляво.  
- Поставете обратно десните странични скоби. Ако сте инсталирали карта с пълна дължина и сте махнали лявата странична скоба, поставете обратно и лявата странична скоба.  
- Поставете обратно капака, като се уверите, че ключалките се заключват. - Mac Pro не може да бъде включен, докато капакът не е поставен обратно.  
- Върнете Mac Pro обратно на рафта. 
- Свържете обратно всички кабели и захранващия кабел към вашия Mac Pro.