在 Mac Pro(机架式)上安装扩展卡
你可以在 PCI Express 扩展插槽中安装额外的卡来配置 Mac Pro。
所有插槽均通过 Mac Pro 主板上的 PCI Express 开关连接。PCI Express 开关带宽通过池式分配自动配置。你可以使用“扩充槽实用工具”来手动配置池式分配。有关“扩充槽实用工具”的更多信息,请参阅 Apple 支持文章:在 Mac Pro 上安装 PCIe 卡。
若要获得最佳性能,请使用通道数至少与所使用卡的通道数相同的任何插槽。有关详细信息,请参阅下表。
搭载 Apple 芯片的 Mac Pro 不支持搭载 Intel 芯片的 Mac Pro 中的 MPX 模块。
【注】这些选项适用于搭载 Apple 芯片的 Mac Pro 机架式工作站。如果你有搭载 Intel 芯片的 Mac Pro 机架式工作站,请参阅在 Mac Pro 上安装扩展卡。如果你有 Mac Pro 塔式工作站,请参阅在 Mac Pro 上安装扩展卡。
| 插槽 | 通道数 | PCI Express 支持 | 
|---|---|---|
| 插槽 7 | x4(预装 Apple I/O 卡) | PCIe 3.0 | 
| 插槽 6 | x8 | PCIe 4.0 | 
| 插槽 5 | x8 | PCIe 4.0 | 
| 插槽 4 | x8 | PCIe 4.0 | 
| 插槽 3 | x8 | PCIe 4.0 | 
| 插槽 2 | x16 | PCIe 4.0 | 
| 插槽 1 | x16 | PCIe 4.0 | 
Mac Pro 具有四个双槽位宽度插槽和三个标准宽度插槽,可通过卡自定义来扩展 Mac Pro 功能。插槽 7 预装 Apple I/O 卡,但此卡可移除以安装其他 PCIe 卡。

【警告】为获得最佳通风效果,安装卡时请加大间距。如果移除卡时未安装替换卡,请在空插槽上放置端口盖板以防止异物进入机箱。未盖住的插槽会影响气流对内部组件的降温,可能导致损坏。
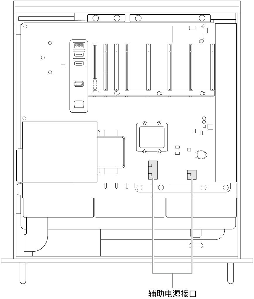
【重要事项】将卡连接到合适的电源,如下图所示。仅使用 apple.com/cn 在线销售或 Apple Store 商店销售的线缆,或兼容的第三方 PCIe 卡随附的线缆。
连接到 AUX 接口时务必小心。将配件安装到使用 AUX 电源的系统时,请先连接 AUX 接口,然后安装模块。连接到 AUX 接口时,请小心勿使模块跌落,否则可能会损坏 AUX 接口或逻辑板。如果 AUX 接口损坏,请勿将电脑开机,否则可能会进一步损坏电脑。有关维修 Mac Pro 的更多信息,请参阅 Mac 的重要安全性信息。

请按照以下步骤在 Mac Pro 上安装扩展卡。
- 选取苹果菜单  - 内部组件可能较烫,触摸前先让其降温 5 到 10 分钟。 
- 断开连接 Mac Pro 上除电源线以外的所有线缆。 
- 触摸 Mac Pro 金属外壳以释放静电。 - 【注】触摸 Mac Pro 内部部件或安装组件前,请始终先释放静电。为避免产生静电,在扩展卡安装完成前,请勿在房间内四处走动。 
- 断开连接电源线。 
- 将 Mac Pro 滑出机架。 - 【注】你可以在 Mac Pro 仍位于机架中时安装扩展卡。 
- 推入外壳任一侧的闩锁,然后提起外壳并将其滑出电脑。  
- 移除必须移除的侧边支架。 - 如果要将卡安装到插槽 1、2、3 或 4 中,请移除右下方的侧边支架。 
- 如果要将卡安装到插槽 5、6 或 7 中,请移除右上方的侧边支架。 
- 如果要安装全长卡,请移除左边支架。 
  
- 移除插槽盖板。  
- 将锁滑到右侧。  
- 从防静电袋中取出新卡,然后从各个角握住。请勿触摸卡上的金制接头或组件。 - 【注】仅使用经过安全认证(CSA、UL 或同等认证)且明确声明符合行业标准 PCIe 规范的 PCIe 模块。 
- 将卡滑动到位。  
- 将锁滑到左侧。  
- 重新安装右边支架。如果安装了全长卡且同时移除了左边支架,也请重新安装左边支架。  
- 重新安装外壳,确保闩锁锁定。 - 重新安装外壳前,Mac Pro 无法启动。  
- 将 Mac Pro 重新安装回机架。 
- 将所有线缆和电源线重新连接到 Mac Pro。