Lắp các thẻ mở rộng trong Mac Pro (Giá đỡ)
Bạn có thể định cấu hình Mac Pro bằng cách lắp các thẻ bổ sung trong các khe cắm mở rộng PCI Express.
Tất cả các khe cắm được kết nối thông qua một bộ chuyển đổi PCI Express trên bo mạch logic chính của Mac Pro. Băng thông bộ chuyển đổi PCI Express được định cấu hình tự động thông qua các phân bổ vùng. Bạn có thể sử dụng Tiện ích khe mở rộng để định cấu hình thủ công các phân bổ vùng. Để biết thêm thông tin về Tiện ích khe mở rộng, hãy xem bài viết Hỗ trợ của Apple Lắp thẻ PCIe trong Mac Pro của bạn.
Để có hiệu năng tối ưu, hãy sử dụng bất kỳ khe cắm nào có số lượng tuyến tối thiểu bằng với thẻ đang được sử dụng. Xem bảng bên dưới để biết chi tiết.
Mô-đun MPX từ Mac Pro sử dụng bộ xử lý Intel không được hỗ trợ trong Mac Pro có Apple silicon.
Ghi chú: Những tùy chọn này dành cho máy trạm giá đỡ Mac Pro có Apple silicon. Nếu bạn có máy trạm giá đỡ Mac Pro sử dụng bộ xử lý Intel, hãy xem Lắp thẻ mở rộng trong Mac Pro. Nếu bạn có máy trạm tháp Mac Pro, hãy xem Lắp thẻ mở rộng trong Mac Pro.
Khe cắm | Số lượng tuyến | Hỗ trợ PCI Express |
|---|---|---|
Khe cắm 7 | x4 (Được lắp sẵn thẻ I/O Apple) | PCIe 3.0 |
Khe cắm 6 | x8 | PCIe 4.0 |
Khe cắm 5 | x8 | PCIe 4.0 |
Khe cắm 4 | x8 | PCIe 4.0 |
Khe cắm 3 | x8 | PCIe 4.0 |
Khe cắm 2 | x16 | PCIe 4.0 |
Khe cắm 1 | x16 | PCIe 4.0 |
Mac Pro có bốn khe cắm gấp đôi chiều rộng và ba khe cắm chiều rộng đơn, có thể được tùy chỉnh với các thẻ để mở rộng khả năng của Mac Pro. Khe cắm 7 được lắp sẵn thẻ I/O Apple, nhưng có thể tháo thẻ này để lắp các thẻ PCIe khác.

CẢNH BÁO: Để đảm bảo thông gió tối ưu, hãy tạo khoảng cách giữa các thẻ khi lắp. Nếu bạn tháo một thẻ và không lắp thẻ thay thế, hãy lắp nắp đậy tiếp cận cổng lên trên khe cắm trống để tránh các vật thể lạ rơi vào bên trong. Khe cắm không được đậy nắp có thể gây ra hỏng hóc do ảnh hưởng đến luồng không khí làm mát các thành phần bên trong.
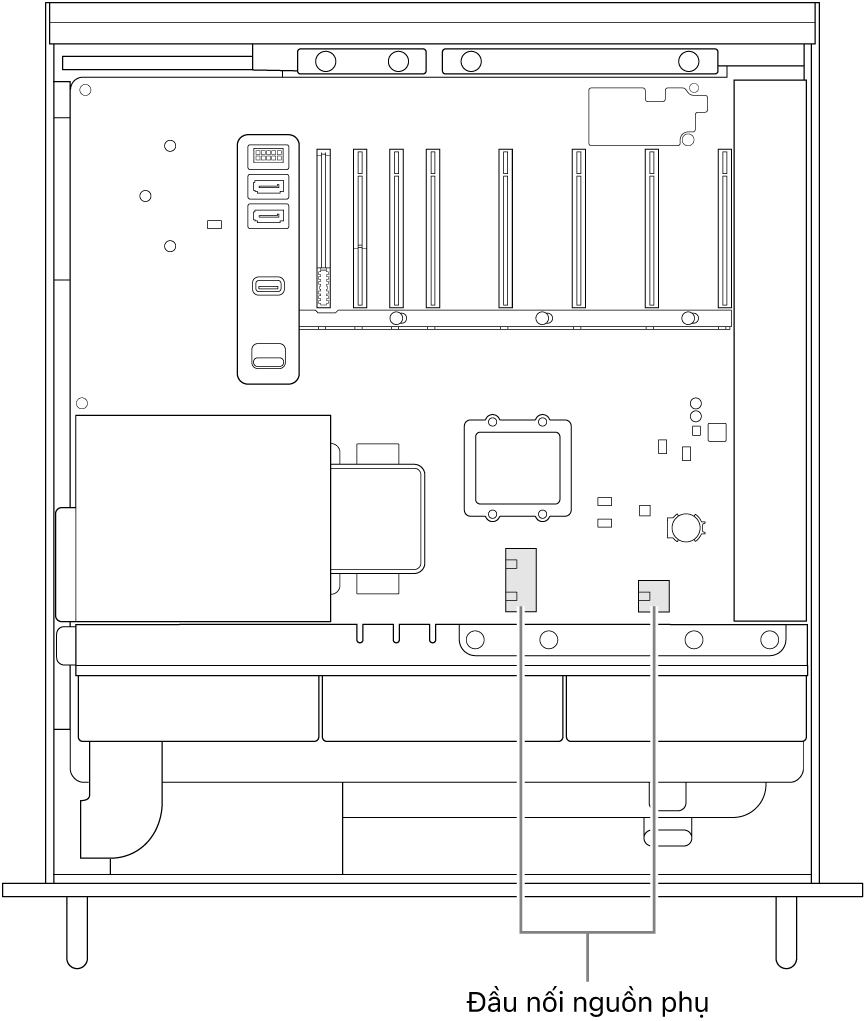
Quan trọng: Kết nối các thẻ với nguồn điện phù hợp, như được minh họa ở bên dưới. Chỉ sử dụng cáp được bán trực tuyến tại apple.com hoặc tại Apple Store hoặc cáp đi kèm với thẻ PCIe tương thích của bên thứ ba.
Cẩn thận trong khi kết nối với các đầu nối AUX. Trong khi lắp phụ kiện sử dụng nguồn AUX vào hệ thống của bạn, trước tiên hãy lắp đầu nối AUX, sau đó lắp mô-đun. Thận trọng để không làm rơi mô-đun trong khi được kết nối với đầu nối AUX vì như vậy có thể dẫn đến hỏng hóc trong đầu nối AUX hoặc bảng lô-gic. Nếu đầu nối AUX bị hỏng, không bật nguồn máy tính của bạn vì làm như vậy có thể khiến đầu nối hỏng nặng hơn. Để biết thêm thông tin về việc sửa chữa Mac Pro của bạn, hãy xem Thông tin an toàn quan trọng cho máy Mac của bạn.

Làm theo những bước này để lắp thẻ mở rộng trong Mac Pro của bạn.
Tắt Mac Pro bằng cách chọn menu Apple
> Tắt máy.
Để máy nguội trong 5 đến 10 phút trước khi chạm vào các thành phần bên trong vì chúng có thể nóng.
Ngắt kết nối tất cả các cáp, trừ dây nguồn khỏi Mac Pro của bạn.
Chạm vào phần kim loại ở bên ngoài Mac Pro của bạn để xả hết tĩnh điện.
Ghi chú: Luôn xả tĩnh điện trước khi bạn chạm vào các bộ phận hoặc lắp các thành phần bên trong Mac Pro. Để tránh tạo ra tĩnh điện, không đi lại xung quanh phòng cho tới khi bạn lắp xong thẻ mở rộng.
Ngắt kết nối dây nguồn.
Trượt Mac Pro ra khỏi giá đỡ.
Ghi chú: Bạn có thể lắp đặt các thẻ mở rộng trong khi Mac Pro vẫn được lắp đặt trong giá đỡ.
Ấn các chốt ở một trong hai sườn của nắp, sau đó nhấc nắp lên và trượt nắp đó ra khỏi máy tính.

Tháo các giá đỡ sườn cần thiết.
Nếu bạn đang lắp thẻ vào Khe cắm 1, 2, 3 hoặc 4, hãy tháo giá đỡ sườn ở dưới cùng bên phải.
Nếu bạn đang lắp thẻ vào Khe cắm 5, 6 hoặc 7, hãy tháo giá đỡ sườn ở trên cùng bên phải.
Nếu bạn đang lắp thẻ có chiều dài đầy đủ, hãy tháo giá đỡ sườn bên trái.

Tháo các nắp đậy khe cắm.

Trượt khóa sang bên phải.

Lấy thẻ mới ra khỏi túi chống tĩnh điện và giữ ở các góc. Không chạm vào đầu nối màu vàng hoặc các thành phần trên thẻ.
Ghi chú: Chỉ sử dụng các mô-đun PCIe được chứng nhận an toàn (CSA, UL hoặc tương đương) và xác định cụ thể rằng chúng phù hợp với thông số kỹ thuật PCIe tiêu chuẩn ngành.
Trượt thẻ vào vị trí.

Trượt khóa sang bên trái.

Lắp lại các giá đỡ sườn bên phải. Nếu bạn đã lắp thẻ có chiều dài đầy đủ và cũng đã tháo giá đỡ sườn bên trái, hãy lắp lại cả giá đỡ sườn bên trái.

Lắp lại nắp, đảm bảo chốt khóa.
Mac Pro không thể khởi động cho tới khi nắp đậy đã được lắp lại.

Lắp lại Mac Pro vào giá đỡ.
Kết nối lại tất cả các cáp và dây nguồn với Mac Pro của bạn.