Installera utbyggnadskort i Mac Pro (rack)
Du kan konfigurera Mac Pro genom att installera ytterligare kort i PCI Express-utbyggnadskortplatserna.
Alla kortplatser är anslutna via en PCI Express-switch på datorns moderkort. PCI Express-switchens bandbredd konfigureras automatiskt genom pooltilldelningar. Du kan använda Utbyggnadsfackverktyg till att konfigurera pooltilldelningar manuellt. Mer information om Utbyggnadsfackverktyg finns i Apple Support-artikeln Installera PCIe-kort i Mac Pro.
För bästa prestanda bör du använda en kortplats som har minst lika många filer som det använda kortet. Se tabellen nedan för mer information.
MPX-moduler från Intel-baserade Mac Pro stöds inte i Mac Pro med Apple Silicon.
Obs! De här alternativen är avsedda för den rackmonterade Mac Pro-arbetsstationen med Apple Silicon. Om du har en Intel-baserad rackmonterad Mac Pro-arbetsstation läser du Installera utbyggnadskort i Mac Pro. Om du har en Mac Pro-tornarbetsstation läser du Installera utbyggnadskort i Mac Pro.
Plats | Antal filer | PCI Express-stöd |
|---|---|---|
Plats 7 | x4 (förinstallerad med Apples I/O-kort) | PCIe 3.0 |
Plats 6 | x8 | PCIe 4.0 |
Plats 5 | x8 | PCIe 4.0 |
Plats 4 | x8 | PCIe 4.0 |
Plats 3 | x8 | PCIe 4.0 |
Plats 2 | x16 | PCIe 4.0 |
Plats 1 | x16 | PCIe 4.0 |
Mac Pro har fyra kortplatser med dubbel bredd och tre med enkel bredd. Dessa kan anpassas med kort för att utöka Mac Pro-funktionerna. Kortplats 7 är förinstallerad med Apples I/O-kort, men du kan ta bort det här kortet om du vill installera andra PCIe-kort.

VARNING: Se till att ha mellanrum mellan korten när du installerar dem. Det ger bästa möjliga luftflöde. Placera ett skydd för porten om du tar bort ett kort och inte sätter i ett annat så att inte främmande föremål kommer in i höljet. En kortplats utan skydd kan orsaka skador genom att påverka luftflödet som kyler de interna komponenterna.
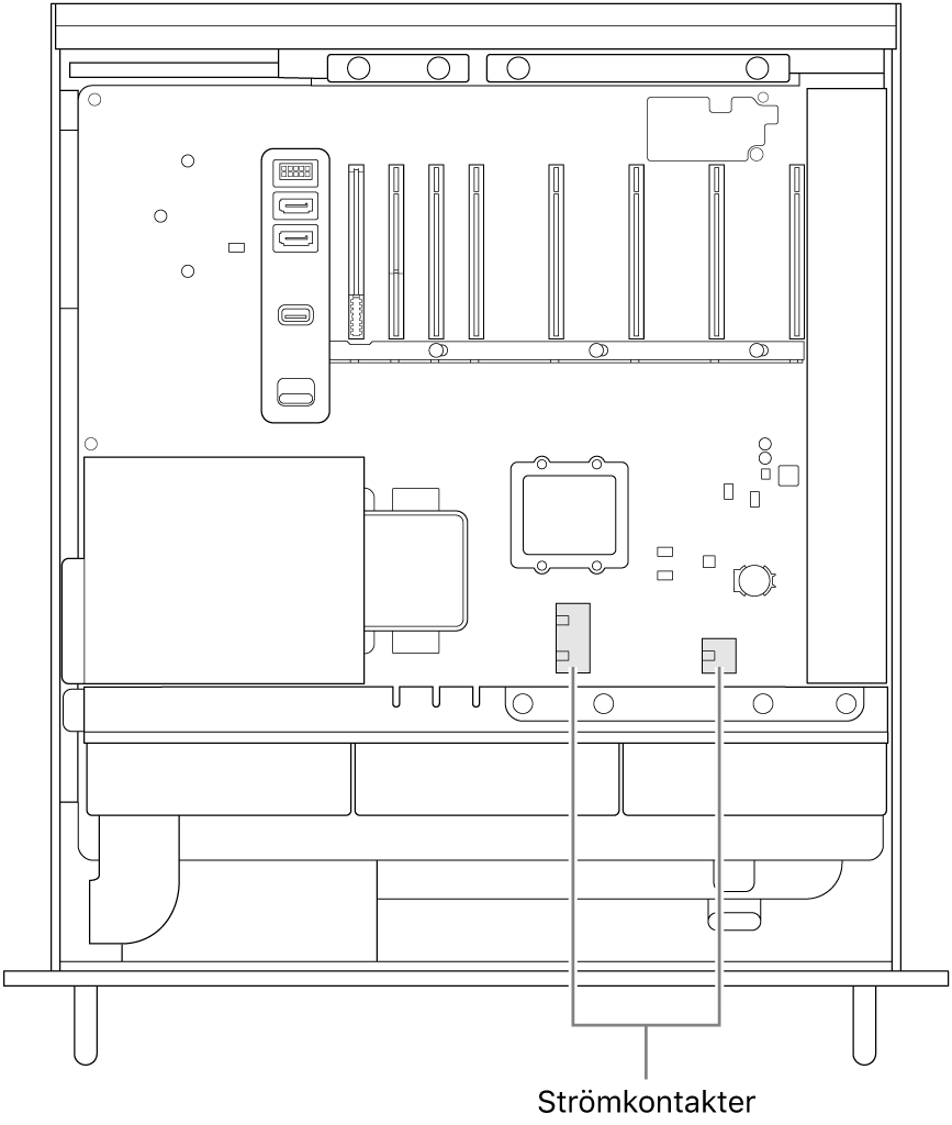
Viktigt: Anslut korten till en lämplig strömkälla enligt bilden nedan. Använd endast kablar som säljs online på apple.com eller i en Apple Store eller kablar som levereras med kompatibla PCIe-kort från tredje part.
Var försiktig när du ansluter till strömkontakterna. När du installerar ett tillbehör som kräver ström ska du börja med att fästa strömkontakten innan du installerar modulen. Se till att inte tappa modulen medan den är ansluten till strömkontakten eftersom det kan leda till att kontakten eller logikkortet skadas. Starta inte datorn om strömkontakten är skadad eftersom den kan skadas ytterligare om du gör det. Läs mer om att reparera datorn i Viktig säkerhetsinformation om din Mac.

Följ de här stegen för att installera utbyggnadskort i datorn.
Stäng av Mac Pro genom att välja Apple-menyn
> Stäng av.
Låt den svalna i 5–10 minuter innan du rör vid de interna komponenterna eftersom de kan vara varma.
Koppla ur alla kablar förutom strömsladden från Mac Pro.
Rör vid metallen på utsidan av Mac Pro så att eventuell statisk elektricitet laddas ur.
Obs! Ladda alltid ur statisk elektricitet innan du rör vid delar eller installerar komponenter i datorn. Undvik att överföra statisk elektricitet genom att inte gå runt i rummet förrän du har installerat utbyggnadskorten.
Koppla från strömsladden.
Dra ut Mac Pro från racket.
Obs! Du kan installera utbyggnadskort medan Mac Pro fortfarande är installerad i racket.
Tryck in spärrarna på båda sidorna på höljet, lyft upp höljet och dra loss det från datorn.

Ta bort de nödvändiga sidofästena.
Om du installerar ett kort i kortplatserna 1, 2, 3 eller 4 tar du bort sidofästet i nederkanten till höger.
Om du installerar ett kort i kortplatserna 5, 6 eller 7 tar du bort sidofästet i överkanten till höger.
Om du installerar ett kort med full längd tar du bort sidofästet till vänster.

Ta bort kortplatsskydden.

Skjut låset åt höger.

Ta ut det nya kortet ur dess antistatiska påse och håll i hörnen. Rör inte vid den guldpläterade kontakten eller komponenterna på kortet.
Obs! Använd endast PCIe-moduler som är certifierade (CSA, UL eller liknande) och tydligt märkta med att de är kompatibla med PCIe-branschstandarden.
Skjut kortet på plats.

Skjut låset åt vänster.

Sätt fast sidofästena till höger igen. Om du installerade ett kort med full längd och också tog bort det vänstra sidofästet fäster du också det vänstra sidofästet igen.

Sätt tillbaka höljet och se till att spärrarna fäster ordentligt.
Mac Pro kan inte starta förrän höljet är på plats igen.

Installera Mac Pro i racket igen.
Återanslut alla kablar och strömsladden till Mac Pro igen.