Vgradnja razširitvenih kartic v računalnik Mac Pro (omarica)
Računalnik Mac Pro lahko konfigurirate z namestitvijo dodatnih kartic v razširitvene reže PCI Express.
Vse reže so povezane prek stikala PCI Express na glavni logični plošči računalnika Mac Pro. Pasovna širina stikala PCI Express se samodejno konfigurira prek dodelitev sklopa. S pripomočkom za razširitveno režo lahko ročno konfigurirate dodelitve sklopa. Za več informacij o pripomočku Expansion Slot Utility, glejte članek podpore Apple Namestitev kartic PCIe v računalnik Mac Pro.
Za optimalno delovanje uporabite poljubno režo, ki ima vsaj toliko pasov kot uporabljena kartica. Podrobnosti glejte v spodnji tabeli.
Moduli MPX iz računalnika Mac Pro s procesorjem Intel niso podprti v računalniku Mac Pro s čipom Apple.
Opomba: Te možnosti so za delovno postajo Mac Pro v omarici s čipom Apple. Če imate delovno postajo Mac Pro v omarici, glejte Vgradnja razširitvenih kartic v računalnik Mac Pro. Če imate delovno postajo Mac Pro v stolpu, glejte Vgradnja razširitvenih kartic v računalnik Mac Pro.
Reža  | Število stez  | PCI Express Support  | 
|---|---|---|
Reža 7  | x4 (prednameščeno s kartico Apple I/O)  | PCIe 3.0  | 
Reža 6  | x8  | PCIe 4.0  | 
Reža 5  | x8  | PCIe 4.0  | 
Reža 4  | x8  | PCIe 4.0  | 
Reža 3  | x8  | PCIe 4.0  | 
Reža 2  | x16  | PCIe 4.0  | 
Reža 1  | x16  | PCIe 4.0  | 
Mac Pro ima štiri reže dvojne širine in tri reže enojne širine, ki jih lahko prilagodite s karticami za razširitev zmožnosti računalnika Mac Pro. Reža 7 je vnaprej nameščena s kartico Apple I/O, vendar lahko to kartico odstranite, če želite namestiti druge kartice PCIe.

OPOZORILO: Za optimalno prezračevanje razmaknite kartice med namestitvijo. Če kartico odstranite in jih ne nadomestite, čez prazno režo postavite pokrov za dostop do vrat, da v ohišje ne bi prišli tujki. Nepokrita reža lahko povzroči škodo, saj vpliva na pretok zraka, ki hladi notranje komponente.
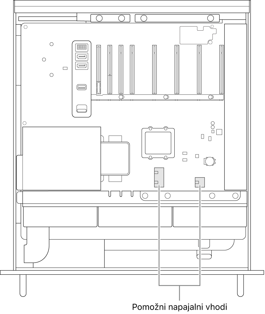
Pomembno: Kartice priključite v ustrezen vir napajanja, kot je prikazano spodaj. Uporabljajte samo kable, ki so naprodaj v spletu na spletnem mestu apple.com ali v trgovini Apple, ali kable z združljivimi karticami PCIe drugih proizvajalcev.
Bodite previdni med priključitvijo priključkov AUX. Ko v sistem namestite pripomoček, ki uporablja napajanje AUX, najprej priključite priključek AUX in nato namestite modul. Bodite previdni, da vam modul ne bi padel, ko je priključen v priključen AUX, saj bi zaradi tega lahko prišlo do poškodb priključka AUX ali logične plošče. Če se priključek AUX poškoduje, ne vklapljajte računalnika, ker bi ga s tem lahko dodatno poškodovali. Za več informacij o popravilu računalnika Mac Pro glejte Pomembne varnostne informacije za vaš Mac.

Če želite v računalnik Mac Pro vgraditi razširitvene kartice, upoštevajte naslednje korake.
Računalnik Mac Pro izklopite tako, da izberete meni Apple
 > Zaustavi.
Preden se dotaknete vgrajenih komponent, ki so lahko vroče, počakajte 5 do 10 minut, da se ohladi.
Iz računalnika Mac Pro izklopite vse kable razen napajalnega kabla.
Dotaknite se kovine na zunanjosti računalnika Mac Pro, da sprostite statično elektriko.
Opomba: Preden se dotikate delov računalnika Mac Pro ali vanj vgrajujete dele, vedno sprostite statično elektriko. Če želite preprečiti nastanek statične elektrike, ne hodite okrog po sobi, dokler ne končate namestitve razširitvenih kartic.
Odklopite napajalni kabel.
Računalnik Mac Pro povlecite ven iz omarice.
Opomba: Razširitvene kartice lahko namestite, ko računalnik Mac Pro ostane nameščen v omarici.
Potisnite zapahe na vsaki strani pokrova, nato pa dvignite pokrov in ga povlecite dol z računalnika.

Odstranite potrebne stranske nosilce.
Če nameščate kartico v reže 1, 2, 3 ali 4, odstranite stranski nosilec v spodnjem desnem kotu.
Če nameščate kartico v režo 5, 6 ali 7, odstranite stranski nosilec v zgornjem desnem kotu.
Če nameščate kartico celotne dolžine, odstranite levi stranski nosilec.

Odstranite pokrove rež.

Zapah potisnite v desno.

Novo kartico odstranite iz antistatične vrečke, pri čemer jo držite v kotih. Ne dotikajte se zlatih priključkov ali sestavnih delov na kartici.
Opomba: Uporabljajte samo module PCIe, ki imajo ustrezen varnostni certifikat (CSA, UL ali enakovreden) in so izrecno skladni s standardno industrijsko specifikacijo PCIe.
Kartico potisnite na mesto.

Potiskanje zapaha v levo.

Ponovno namestite desne stranske nosilce. Če ste namestili kartico polne dolžine in odstranili tudi levi stranski nosilec, znova namestite tudi levi stranski nosilec.

Znova namestite pokrov in se prepričajte, da se zapahi zaklenejo.
Računalnik Mac Pro se ne more zagnati, dokler pokrova znova ne namestite.

Računalnik Mac Pro namestite nazaj v omarico.
V računalnik Mac Pro znova priključite vse kable in napajalni kabel.