Instalowanie kart rozszerzających w Macu Pro (szafa serwerowa)
Możesz konfigurować Maca Pro, instalując dodatkowe karty w gniazdach rozszerzających PCI Express.
Wszystkie gniazda są połączone przez przełącznik PCI Express na płycie głównej Maca Pro. Pasmo przełącznika PCI Express jest automatycznie konfigurowane poprzez alokacje puli. Za pomocą aplikacji Narzędzie gniazd rozszerzeń można ręcznie skonfigurować alokacje puli. Aby uzyskać więcej informacji na temat aplikacji Narzędzie gniazd rozszerzeń, zapoznaj się z artykułem Wsparcia Apple Instalacja kart PCIe w Macu Pro.
Aby uzyskać optymalną wydajność, użyj gniazda, które ma co najmniej tyle samo torów, co używana karta. Szczegóły znajdziesz w tabeli poniżej.
Moduły MPX z Maca Pro z procesorem Intel nie są obsługiwane w Macu Pro z układem scalonym Apple.
Uwaga: Te opcje dotyczącą montowanego w szafie serwerowej Maca Pro z układem scalonym Apple. Jeśli masz montowanego w szafie serwerowej Maca Pro z procesorem Intel, zobacz: Instalowanie kart rozszerzeń w Macu Pro. Jeśli masz Maca Pro w obudowie typu wieża, zobacz: Instalowanie kart rozszerzeń w Macu Pro.
Gniazdo | Liczba torów | Obsługa PCI Express |
|---|---|---|
Gniazdo 7 | x4 (wstępnie zainstalowana karta we/wy Apple) | PCIe 3.0 |
Gniazdo 6 | x8 | PCIe 4.0 |
Gniazdo 5 | x8 | PCIe 4.0 |
Gniazdo 4 | x8 | PCIe 4.0 |
Gniazdo 3 | x8 | PCIe 4.0 |
Gniazdo 2 | x16 | PCIe 4.0 |
Gniazdo 1 | x16 | PCIe 4.0 |
Mac Pro ma cztery gniazda o podwójnej szerokości oraz trzy gniazda o pojedynczej szerokości, do których można dopasowywać karty pozwalające rozszerzyć możliwości Maca Pro. W gnieździe 7 jest wstępnie zainstalowana karta we/wy Apple, ale można ją wyjąć w celu instalacji innych kart PCIe.

OSTRZEŻENIE: Aby zapewnić optymalną wentylację, rozmieść równomiernie instalowane karty. Jeśli usuniesz kartę i nie zainstalujesz innej, zamontuj osłonę dostępu do pustego gniazda, aby nie wpuszczać ciał obcych do wewnątrz. Nieosłonięte gniazdo może spowodować uszkodzenia, ponieważ wpływa na przepływ powietrza chłodzącego wewnętrzne komponenty.
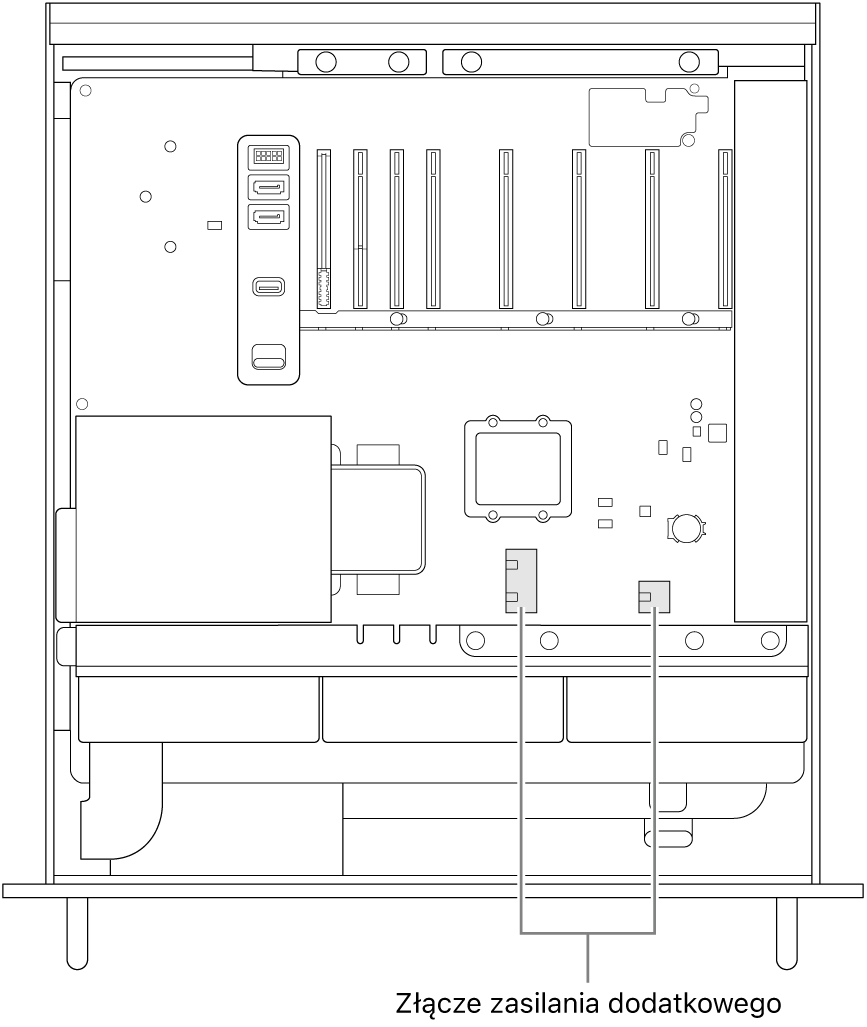
Ważne: Podłączaj karty do właściwego źródła zasilania, tak jak pokazano to na poniższej ilustracji. Używaj tylko kabli sprzedawanych online na stronie apple.com lub w sklepie Apple Store albo kabli dołączonych do zgodnych kart PCIe innych firm.
Należy zachować ostrożność podczas podłączania do złączy AUX. Instalując w systemie akcesorium, które korzysta z zasilania AUX, podłącz najpierw wtyczkę AUX, a następnie zainstaluj moduł. Uważaj, aby nie upuścić modułu, gdy jest podłączony do złącza AUX, gdyż w ten sposób można uszkodzić złącze AUX lub płytę główną. Jeśli złącze AUX zostanie uszkodzone, nie wolno włączać komputera, gdyż może to spowodować dalsze jego uszkodzenia. Aby dowiedzieć się więcej o naprawianiu Maca Pro, zobacz: Ważne informacje dotyczące bezpieczeństwa podczas używania Maca.

Aby zainstalować karty rozszerzające w Macu Pro, wykonaj poniższe kroki.
Wyłącz Maca Pro, wybierając polecenie menu Apple
> Wyłącz.
Zanim dotkniesz elementów wewnętrznych, które mogą być gorące, pozwól mu ostygnąć przez 5 do 10 minut.
Odłącz od Maca Pro wszystkie kable oprócz kabla zasilającego.
Aby rozładować ładunki elektrostatyczne, dotknij części metalowej na zewnątrz Maca Pro.
Uwaga: Pamiętaj, aby zawsze rozładować ładunki elektrostatyczne zanim dotkniesz lub zaczniesz instalować elementy wewnętrz Maca Pro. Aby uniknąć generowania tych ładunków, nie spaceruj po pomieszczeniu, dopóki nie zakończysz instalować kart rozszerzających.
Odłącz kabel zasilający.
Wysuń Maca Pro z szafy.
Uwaga: Karty rozszerzeń możesz instalować, gdy Mac Pro jest zamontowany w szafie.
Naciśnij zatrzaski po obu stronach osłony, a następnie unieś tę osłonę i wysuń ją z komputera.

Wymontuj odpowiednie klamry boczne.
Jeśli instalujesz kartę w gniazdach 1, 2, 3 lub 4, wymontuj klamrę boczną z prawej strony u dołu.
Jeśli instalujesz kartę w gniazdach 5, 6 lub 7, wymontuj klamrę boczną z prawej strony u góry.
Jeśli instalujesz kartę o pełnej długości, wymontuj lewą klamrę boczną.

Zdejmij osłony gniazd.

Przesuń blokadę w prawo.

Wyjmij nową kartę z opakowania antystatycznego i chwyć ją za narożniki. Nie dotykaj pozłacanego złącza ani elementów na karcie.
Uwaga: Używaj tylko kart, które posiadają certyfikat bezpieczeństwa (CSA, UL lub równoważny) oraz wyraźnie stwierdzają, że są zgodne ze specyfikacją branżową PCIe.
Wsuń kartę.

Przesuń blokadę w lewo.

Zamontuj prawe klamry boczne. Jeśli zainstalowano kartę o pełnej długości i wymontowano również lewą klamrę boczną, zamontuj również tę klamrę.

Zamontuj ponownie osłonę i sprawdź, czy zatrzaski są zablokowane.
Mac Pro nie może się uruchomić do momentu ponownego zainstalowania pokrywy.

Wsuń z powrotem Maca Pro do szafy serwerowej.
Podłącz do Maca Pro wszystkie kable i przewód zasilający.