Installer utvidelseskort i Mac Pro (rack)
Du kan konfigurere Mac Pro ved å installere ytterligere kort i PCI Express-utvidelsesplassene.
Alle utvidelsesplassene er tilkoblet gjennom en PCI Express-svitsj på hovedkortet til Mac Pro. PCI Express-svitsjens båndbredde konfigureres automatisk gjennom gruppeallokeringer. Du kan bruke Utvidelsesplassverktøy til å konfigurere gruppeallokeringer manuelt. Hvis du vil ha mer informasjon om Utvidelsesplassverktøy, kan du se Apple-kundestøtteartikkelen Install PCIe cards in your Mac Pro.
For optimal ytelse bør du bruke en utvidelsesplass som har minst like mange baner som kortet. Se tabellen under for flere detaljer.
MPX-moduler fra Intel-baserte Mac Pro-maskiner støttes ikke av Mac Pro med Apple-chip.
Merk: Disse alternativene er for rackmontert Mac Pro-arbeidsstasjon med Apple-chip. Hvis du har en Intel-basert Mac Pro-arbeidsstasjon for rack, kan du se Installer utvidelseskort i Mac Pro. Hvis du har en Mac Pro-arbeidsstasjon (tårn), kan du se Installer utvidelseskort i Mac Pro.
Plass | Antall baner | PCI Express-støtte |
|---|---|---|
Plass 7 | x 4 (forhåndsinstallert med Apple I/O-kort) | PCIe 3.0 |
Plass 6 | x8 | PCIe 4.0 |
Plass 5 | x8 | PCIe 4.0 |
Plass 4 | x8 | PCIe 4.0 |
Plass 3 | x8 | PCIe 4.0 |
Plass 2 | x16 | PCIe 4.0 |
Plass 1 | x16 | PCIe 4.0 |
Mac Pro har fire dobbeltbreddeplasser og tre enkeltbreddeplasser som kan tilpasses med kort for å utvide Mac Pro-funksjonaliteten. Et Apple I/O-kort er forhåndsinstallert i utvidelsesplass 7, men dette kortet kan fjernes for å gi plass til andre PCIe-kort.

ADVARSEL: For optimal ventilasjon, ha jevn avstand mellom kortene når du installerer dem. Hvis du fjerner et kort og ikke erstatter det med et annet kort, plasseres et portdeksel over den tomme plassen for å hindre fremmedlegemer fra å trenge inn i kabinettet. En plass som mangler deksel, kan påvirke luftstrømmen som kjøler ned de interne komponentene, og dermed forårsake skade.
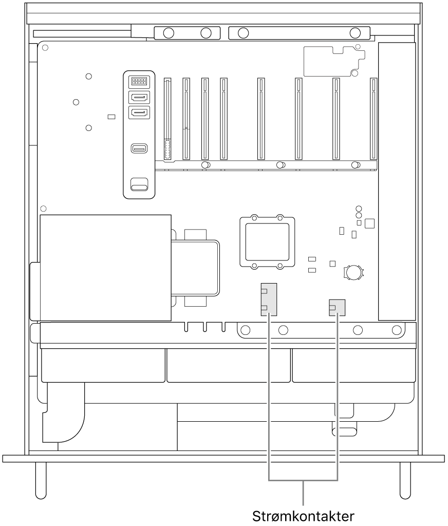
Viktig: Koble kort til riktig strømkilde, som vist under. Bruk kun kabler som selges i Apple Store-butikker og på nett på apple.com, eller kabler som følger med kompatible PCIe-kort fra tredjepartsprodusenter.
Vær forsiktig når du kobler til AUX-kontaktene. Når du installerer tilbehør i systemet som bruker AUX-strøm, kobler du først til AUX-kontakten og installerer deretter modulen. Ikke mist modulen når den er koblet til AUX-kontakten, da dette kan føre til skade på AUX-kontakten eller hovedkortet. Hvis AUX-kontakten skades, må du ikke slå på datamaskinen da dette kan føre til ytterligere skade. Hvis du vil ha mer informasjon om reparasjon av Mac Pro, kan du se Viktig sikkerhetsinformasjon for Macen.

Følg disse trinnene for å installere utvidelseskort i Mac Pro.
Slå av Mac Pro ved å velge Apple-menyen
> Slå av.
La den avkjøles i 5 til 10 minutter før du berører de interne komponentene, som kan være varme.
Koble alle kabler, bortsett fra strømkabelen, fra Mac Pro.
Berør metallet på utsiden av Mac Pro for å lade ut eventuell statisk elektrisitet.
Merk: Sørg alltid for å lade ut statisk elektrisitet før du berører deler eller installerer komponenter i Mac Pro. For å unngå å generere statisk elektrisitet, bør du ikke gå rundt i rommet før du er ferdig med å installere utvidelseskortene.
Koble fra strømkabelen.
Trekk Mac Pro ut av racken.
Merk: Du kan installere utvidelseskort mens Mac Pro står i racken.
Trykk inn spakene på hver side av dekselet, løft deretter opp dekselet og trekk det av maskinen.

Fjern de nødvendige sidebrakettene.
Hvis du skal installere kort på utvidelsesplass 1, 2, 3 eller 4, må du fjerne sidebraketten nederst på høyre side.
Hvis du skal installere kort på utvidelsesplass 5, 6 eller 7, må du fjerne sidebraketten øverst på høyre side.
Hvis du skal installere et kort i full størrelse, må du fjerne sidebraketten på venstre side.

Fjern plassdekslene.

Skyv låsen mot høyre.

Ta det nye kortet ut av den antistatiske posen og hold den i hjørnene. Ikke berør gullkontaktene eller komponentene på kortet.
Merk: Bruk kun PCIe-moduler som er sikkerhetssertifisert (CSA, UL eller tilsvarende) og som spesifikt erklærer at de følger bransjestandard-PCIe-spesifikasjonen.
Skyv kortet på plass.

Skyv låsen mot venstre.

Sett sidebrakettene tilbake på plass på høyre side. Hvis du har fjernet sidebraketten på venstre side for å installere et kort i full størrelse, må du sette sidebraketten tilbake på plass etterpå.

Sett dekselet på plass igjen og sørg for at spakene låses.
Mac Pro kan ikke starte før dekselet settes tilbake på plass.

Sett Mac Pro tilbake i racken.
Koble alle kabler og strømkabelen til Mac Pro igjen.