Paplašināšanas karšu uzstādīšana Mac Pro datorā (ar statīvu)
Varat konfigurēt savu Mac Pro datoru, uzstādot papildu kartes PCI Express paplašināšanas ligzdās.
Visi sloti ir savienoti, izmantojot PCI Express slēdzi Mac Pro datora galvenajā mātesplatē. PCI Express slēdža joslas platums tiek automātiski konfigurēts ar kopu piešķiršanu. Varat izmantot Expansion Slot Utility, lai manuāli konfigurētu kopu piešķiršanu. Lai iegūtu plašāku informāciju par Expansion Slot Utility, skatiet Apple atbalsta rakstu PCIe karšu uzstādīšana Mac Pro datorā.
Lai nodrošinātu optimālu darbību, izmantojiet jebkuru slotu kam ir vismaz tik daudz līniju, cik lietotajai kartei. Detalizētu informāciju sk. tabulā tālāk.
Mac Pro datoru ar Intel procesoru MPX moduļi netiek atbalstīti Mac Pro datoros ar Apple silicon.
Piezīme. Šīs opcijas ir Mac Pro statīva darbstacijai ar Apple silicon. Ja jums ir Mac Pro statīva darbstacija ar Intel procesoru, skatiet Paplašināšanas karšu uzstādīšana Mac Pro datorā. Ja jums ir Mac Pro torņa darbstacija, skatiet Paplašināšanas karšu uzstādīšana Mac Pro datorā.
Ligzda | Līniju skaits | PCI Express atbalsts |
|---|---|---|
7. ligzda | x4 (iepriekš uzstādīts ar Apple I/O karti) | PCIe 3.0 |
6. ligzda | x8 | PCIe 4.0 |
5. ligzda | x8 | PCIe 4.0 |
4. ligzda | x8 | PCIe 4.0 |
3. ligzda | x8 | PCIe 4.0 |
2. ligzda | x16 | PCIe 4.0 |
1. ligzda | x16 | PCIe 4.0 |
Mac Pro datoram ir četras dubulta platuma ligzdas un trīs viena platuma ligzdas, kuras iespējams pielāgot ar kartēm, lai paplašinātu Mac Pro iespējas. 7. slots ir iepriekš uzstādīts ar Apple I/O karti, taču šo karti var izņemt, lai uzstādītu citas PCIe kartes.

BRĪDINĀJUMS. Optimālai ventilācijai uzstādīšanas laikā ieturiet atstarpes starp kartēm. Ja izņemat karti un neievietojat citu karti vietā, nosedziet tukšo ligzdu ar porta piekļuves pārsegu, lai nepieļautu svešķermeņu nokļūšanu ligzdā. Vaļēja ligzda var radīt bojājumus, ietekmējot gaisa plūsmu, kas atdzesē iekšējos komponentus.
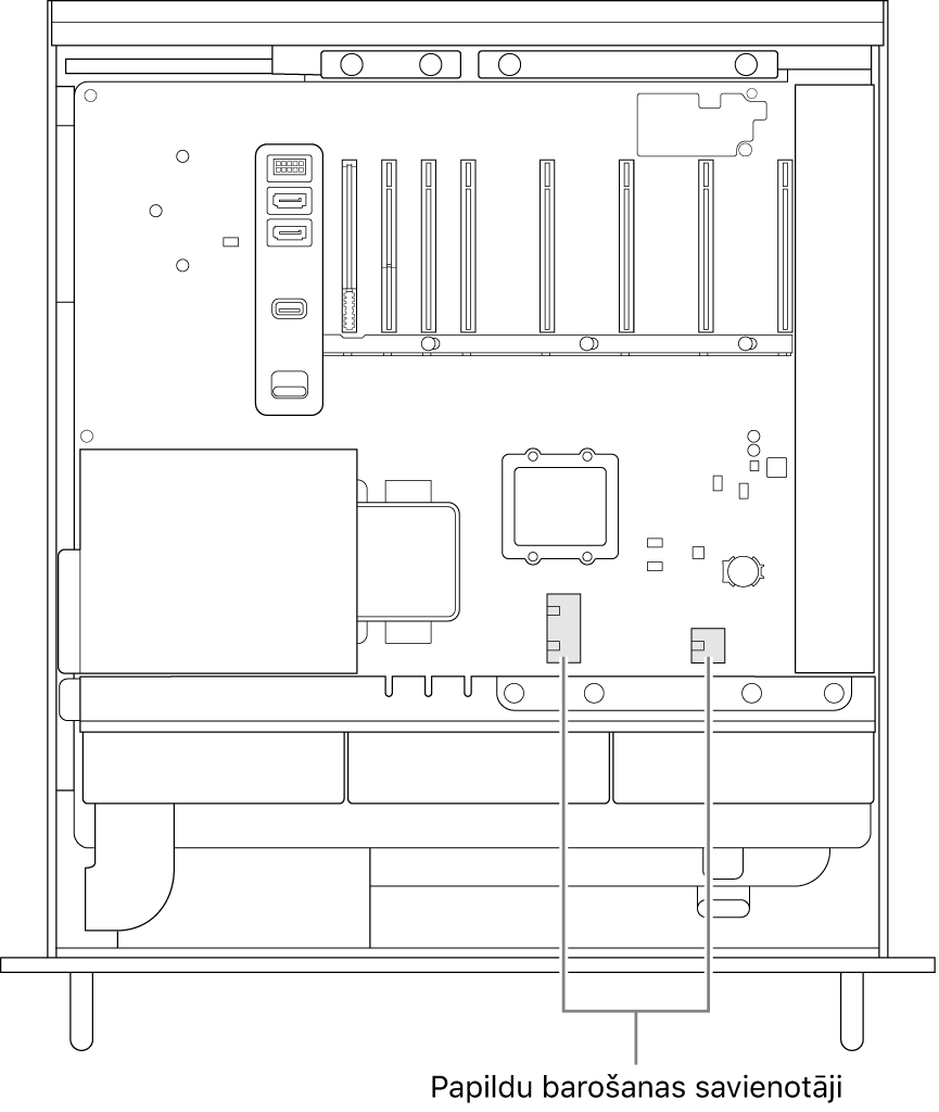
Svarīgi. Pievienojiet kartes atbilstošam strāvas avotam, kā parādīts tālāk. Izmantojiet tikai kabeļus, kas tiek pārdoti tiešsaistē vietnē apple.com vai Apple Store, vai arī kabeļus, kas ir iekļauti saderīgu trešās puses PCIe karšu komplektācijā.
Uzmanieties, pievienojot AUX savienotājus. Uzstādot sistēmā piederumus, kas izmanto AUX pieslēgumu, vispirms pievienojiet AUX savienotāju, pēc tam uzstādiet moduli. Esiet piesardzīgs un nenometiet moduli, kas ir savienots ar AUX savienotāju; šāda rīcība var radīt bojājumus AUX savienotājam vai mātesplatei. Ja AUX savienotājs tiek sabojāts, neieslēdziet savu datoru, lai neradītu tālākus bojājumus. Plašāku informāciju par Mac Pro datora remontēšanu skatiet Svarīga informācija par jūsu Mac datora drošību.

Veiciet tālāk aprakstītās darbības, lai uzstādītu paplašināšanas kartes savā Mac Pro datorā.
Izslēdziet savu Mac Pro datoru, izvēloties izvēlni Apple
> Shut Down.
Pirms pieskarties iekšējiem komponentiem, kas var būt uzkarsuši, ļaujiet datoram 5-10 minūtes atdzist.
Atvienojiet no sava Mac Pro datora visus kabeļus, izņemot strāvas kabeli.
Pieskarieties metālam Mac Pro datora ārpusē, lai izlādētu statisko elektrību, ja tāda ir sakrājusies.
Piezīme. Vienmēr izlādējiet statisko elektrību, pirms pieskaraties daļām vai uzstādāt komponentus sava Mac Pro datora iekšienē. Lai novērstu statiskās elektrības veidošanos, nestaigājiet pa telpu, līdz neesat pabeidzis paplašināšanas karšu uzstādīšanu.
Atvienojiet strāvas kabeli.
Izņemiet Mac Pro datoru no statīva.
Piezīme. Paplašināšanas kartes varat uzstādīt arī statīvā esošam Mac Pro datoram.
Uzspiediet uz fiksatoriem abās pārsega pusēs, pēc tam paceliet pārsegu un noslidiniet to no datora.

Noņemiet sānu skavas.
Ja uzstādāt karti 1., 2., 3. vai 4. ligzdā, noņemiet sānu skavu apakšējā labajā pusē.
Ja uzstādāt karti 5., 6. vai 7. ligzdā, noņemiet sānu skavu apakšējā labajā pusē.
Ja uzstādāt pilna garuma karti, noņemiet sānu skavu kreisajā pusē.

Noņemiet ligzdu pārsegus.

Slidiniet slēdzi pa labi.

Izņemiet jauno karti no tās statistisko elektrību necaurlaidīgā maisa un turiet aiz stūriem. Nepieskarieties zelta savienotājam vai kartes komponentiem.
Piezīme. Izmantojiet tikai PCIe moduļus ar drošības sertifikātiem (CSA, UL vai līdzīgiem), kam ir īpaši norādīta atbilstība industrijas standarta PCIe specifikācijai.
Ieslidiniet karti vietā.

Slidiniet slēdzi pa kreisi.

Atkārtoti uzlieciet labās sānu skavas. Ja uzstādījāt pilna garuma karti un arī noņēmāt kreiso sānu skavu, atkārtoti uzlieciet arī kreiso sānu skavu.

Uzstādiet atpakaļ pārsegu, pārliecinoties, ka fiksatori nofiksējas.
Mac Pro datoru nebūs iespējams ieslēgt, kamēr nebūs atkārtoti uzlikts pārsegs.

Nostipriniet Mac Pro datoru atpakaļ statīvā.
Pievienojiet Mac Pro datoram visus kabeļus un strāvas kabeli.