„Mac Pro“ („Rack“) išplėtimo plokščių montavimas
„Mac Pro“ galite sukonfigūruoti įmontuodami papildomas plokštes „PCI Express“ išplėtimo lizduose.
Visi lizdai yra prijungti naudojant „PCI Express“ perjungiklį, esantį pagrindinėje „Mac Pro“ loginėje plokštėje. „PCI Express“ perjungiklio pralaidumas automatiškai sukonfigūruojamas paskirstant telkinį. Norėdami rankiniu būdu konfigūruoti telkinio paskirstymą, galite naudoti „Expansion Slot Utility“. Daugiau informacijos apie „Expansion Slot Utility“ rasite „Apple“ pagalbos straipsnyje „PCIe“ plokščių montavimas į „Mac Pro“.
Kad našumas būtų optimalus, naudokite bet kurį lizdą, kuriame yra bent tiek juostų, kiek yra naudojamoje kortelėje. Informacijos rasite toliau nurodytoje lentelėje.
MPX moduliai iš „Mac Pro“ su „Intel“ procesoriumi nepalaikomi „Mac Pro“ įrenginyje su „Apple silicon“.
Pastaba: Tai yra „Mac Pro Rack“ darbo stoties su „Apple silicon“ variantai. Jei turite „Mac Pro Rack“ darbo stotį su „Intel“ procesoriumi, žr. temą „Mac Pro“ išplėtimo plokščių montavimas. Jei turite „Mac Pro Tower“ darbo stotį, žr. temą „Mac Pro“ išplėtimo plokščių montavimas.
Lizdas | Juostų skaičius | „PCI Express“ palaikymas |
|---|---|---|
7 lizdas | x 4 (iš anksto įmontuotas su „Apple“ įvesties / išvesties kortele) | PCIe 3.0 |
6 lizdas | x 8 | PCIe 4.0 |
5 lizdas | x 8 | PCIe 4.0 |
4 lizdas | x 8 | PCIe 4.0 |
3 lizdas | x 8 | PCIe 4.0 |
2 lizdas | x 16 | PCIe 4.0 |
1 lizdas | x 16 | PCIe 4.0 |
„Mac Pro“ įrengti keturi dvigubo pločio ir trys viengubo pločio lizdai, prie kurių galima prijungti plokščių ir išplėsti „Mac Pro“ galimybes. 7 lizdas yra iš anksto įmontuotas su „Apple“ įvesties / išvesties kortele, tačiau šią kortelę galima išimti, kad būtų galima įtaisyti kitas „PCIe“ korteles.

ĮSPĖJIMAS: Kad ventiliavimas vyktų optimaliai, montuodami plokštes išdėstykite jas kuo plačiau. Jei plokštę pašalinate ir nemontuojate pakaitinės, tuščią lizdą uždenkite prievado prieigos dangteliu, kad į jį nepatektų pašalinių daiktų. Neuždengtas lizdas gali paveikti vidinius komponentus aušinantį oro srautą ir sukelti gedimų.
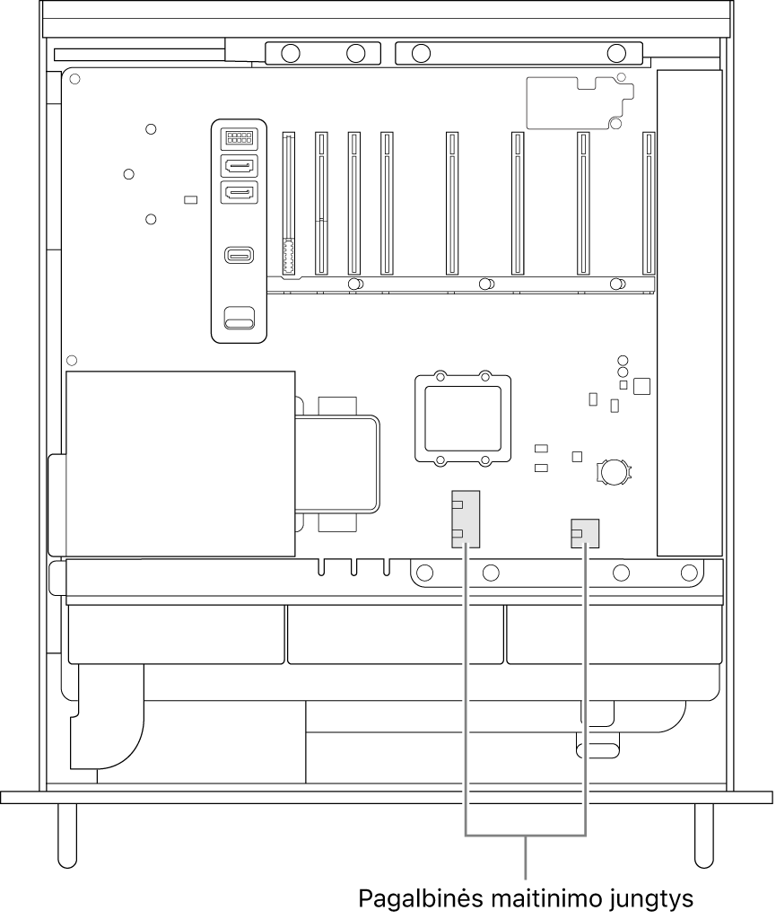
Svarbu: Prijunkite plokštes prie atitinkamo maitinimo šaltinio, kaip parodyta toliau. Naudokite tik laidus, parduodamus internete adresu apple.com ar parduotuvėje „Apple Store“, arba kabelius, kurie yra su suderinamomis trečiųjų šalių PCIe kortelėmis.
Prijungdami AUX jungtis, elkitės atsargiai. Kai prijungiate priedą prie sistemos, kurioje naudojamas AUX maitinimas, pirmiausia prijunkite AUX jungtį, tada sumontuokite modulį. Elkitės atsargiai ir nenumeskite modulio, kai prijungta AUX jungtis, nes taip galite sugadinti AUX jungtį arba loginę plokštę. Jei AUX jungtis sugadinta, neįjunkite kompiuterio, nes galite sukelti daugiau gedimų. Daugiau informacijos apie „Mac Pro“ taisymą rasite temoje Svarbi saugos informacija apie jūsų „Mac“.

Montuodami „Mac Pro“ išplėtimo plokštes, atlikite toliau nurodytus veiksmus.
Išjunkite „Mac Pro“ pasirinkdami „Apple“ meniu
> „Shut Down“.
Palaukite 5–10 min., kol įrenginys atvės, prieš liesdami vidinius komponentus, kurie gali būti karšti.
Nuo „Mac Pro“ atjunkite visus kabelius, išskyrus maitinimo laidą.
Palieskite „Mac Pro“ išorės metalą, kad iškrautumėte statinį elektros krūvį.
Pastaba: Prieš liesdami arba montuodami „Mac Pro“ vidaus komponentus, visada iškraukite statinį elektros krūvį. Kad nesusidarytų statinis elektros krūvis, nevaikščiokite po kambarį, kol nebaigsite montuoti išplėtimo plokščių.
Atjunkite maitinimo laidą.
Išstumkite „Mac Pro“ iš rėmo.
Pastaba: Išplėtimo plokštes galite montuoti neištraukę „Mac Pro“ iš rėmo.
Pastumkite abiejose dangčio pusėse esančius skląsčius, tada kilstelėkite dangtį ir nuslinkite jį nuo kompiuterio.

Pašalinkite reikalingą šoninę gembę.
Jei įdedate plokštę į 1, 2, 3 arba 4 lizdus, nuimkite šoninę gembę apatiniame dešiniajame kampe.
Jei įdedate plokštę į 5, 6 arba 7 lizdus, nuimkite šoninę gembę viršutiniame dešiniajame kampe.
Jei įdedate viso ilgio plokštę, pašalinkite kairiąją šoninę gembę.

Nuimkite lizdų dangtelius.

Pastumkite skląstį į dešinę.

Išimkite naują plokštę iš antistatinio maišelio ir laikykite ją už kampų. Nelieskite plokštės auksinės jungties arba komponentų.
Pastaba: Naudokite tik tuos „PCIe“ modulius, kurių sauga yra patvirtinta (CSA, UL ar lygiavertės institucijos) ir kurie yra konkrečiai nurodyti kaip suderinami su standartinėmis „PCIe“ specifikacijomis.
Įstumkite plokštę į reikiamą vietą.

Pastumkite skląstį į kairę.

Iš naujo įdėkite dešiniąsias šonines gembes. Jei įdėjote viso ilgio plokštę ir taip pat pašalinote kairiąją šoninį gembę, iš naujo įdėkite ir kairiąją šoninę gembę.

Uždėkite dangtelį, įsitikindami, kad skląsčiai užsifiksavo.
„Mac Pro“ negalima paleisti, kol dangtis neįstatytas iš naujo.

Įstatykite „Mac Pro“ atgal į rėmą.
Prijunkite visus kabelius ir maitinimo laidą prie „Mac Pro“.