Mac Pro(랙)에 확장 카드 설치하기
PCI Express 확장 슬롯에서 추가 카드를 설치하여 Mac Pro를 구성할 수 있습니다.
모든 슬롯은 Mac Pro 메인 로직 보드의 PCI Express 스위치를 통해 연결됩니다. PCI Express 스위치 대역폭은 풀 할당을 통해 자동으로 구성됩니다. 확장 슬롯 유틸리티를 사용하여 풀 할당을 수동으로 구성할 수 있습니다. 확장 슬롯 유틸리티에 대한 자세한 정보는 Apple 지원 문서 Mac Pro에 PCIe 카드 장착하기의 내용을 참조하십시오.
최적의 성능을 위해 적어도 사용하는 카드와 레인 수가 같은 슬롯을 사용하십시오. 자세한 내용을 보려면 아래 표의 내용을 참조하십시오.
Intel 기반 Mac Pro의 MPX 모듈은 Apple Silicon이 탑재된 Mac Pro에서 지원되지 않습니다.
참고: 이 옵션은 Apple Silicon이 탑재된 Mac Pro 랙 워크스테이션용입니다. Intel 기반 Mac Pro 랙 워크스테이션이 있는 경우 Mac Pro에 확장 카드 설치하기의 내용을 참조하십시오. Mac Pro 타워 워크스테이션이 있는 경우 Mac Pro에 확장 카드 설치하기의 내용을 참조하십시오.
슬롯 | 레인 개수 | PCI Express 지원 |
|---|---|---|
슬롯 7 | x4(Apple I/O 카드가 미리 설치됨) | PCIe 3.0 |
슬롯 6 | x8 | PCIe 4.0 |
슬롯 5 | x8 | PCIe 4.0 |
슬롯 4 | x8 | PCIe 4.0 |
슬롯 3 | x8 | PCIe 4.0 |
슬롯 2 | x16 | PCIe 4.0 |
슬롯 1 | x16 | PCIe 4.0 |
Mac Pro에는 카드로 사용자화하여 Mac Pro의 기능을 확장할 수 있는 더블 와이드 슬롯 4개와 싱글 와이드 슬롯 3개가 있습니다. 슬롯 7에는 Apple I/O 카드가 미리 설치되지만 이 카드를 제거하여 다른 PCIe 카드를 설치할 수 있습니다.

경고: 최적의 통풍을 위해 카드를 설치할 때 간격을 두십시오. 카드를 제거하고 다른 카드를 설치하지 않는 경우, 빈 슬롯에 포트 덮개를 씌워서 인클로저에 이물질이 들어가지 않도록 하십시오. 슬롯에 덮개를 씌우지 않으면 내부 부품을 냉각하는 공기 흐름이 원활하지 않아 내부 부품이 손상될 수 있습니다.
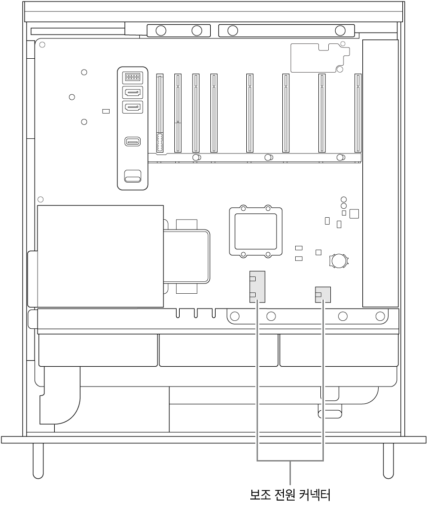
중요사항: 다음에서 설명한 것과 같이 적절한 전원에 카드를 연결하십시오. apple.com/kr에서 온라인으로 판매하거나 Apple Store에서 판매하는 케이블 또는 호환되는 타사 PCIe 카드와 함께 제공된 케이블만 사용하십시오.
AUX 커넥터를 연결할 때에는 주의가 필요합니다. AUX 전원을 사용하는 액세서리를 시스템에 설치하는 경우, 먼저 AUX 커넥터를 연결한 다음 모듈을 설치하십시오. 모듈이 AUX 커넥터에 연결되어 있을 때 모듈을 떨어뜨리지 않도록 주의하십시오. AUX 커넥터나 로직 보드가 손상될 수 있습니다. AUX 커넥터가 손상된 경우 컴퓨터를 켜지 마십시오. AUX 커넥터가 더 손상될 수 있습니다. Mac Pro 수리에 대한 자세한 정보는 Mac에 대한 중요한 안전 정보의 내용을 참조하십시오.

다음 단계에 따라 Mac Pro에 확장 카드를 설치하십시오.
Apple 메뉴
> 시스템 종료를 선택하여 Mac Pro의 전원을 끄십시오.
고온의 내부 부품에 손을 대기 전에 5분에서 10분 동안 열을 식히십시오.
Mac Pro에서 전원 코드를 제외한 모든 케이블을 연결 해제하십시오.
Mac Pro의 바깥쪽 금속에 손을 대서 모든 정전기를 완전히 방전시킵니다.
참고: 부품에 손을 대거나 Mac Pro 내부에 부품을 설치하기 전에 항상 체내의 정전기를 완전히 방전시키십시오. 정전기 생성을 방지하기 위해 확장 카드 설치를 완료하기 전까지 돌아다니지 마십시오.
전원 코드를 연결 해제하십시오.
Mac Pro를 랙에서 밀어 내십시오.
참고: Mac Pro가 랙에 설치되어 있는 상태에서 확장 카드를 설치할 수 있습니다.
덮개 한 쪽에 래치를 밀어넣은 다음, 덮개를 들어올리고 컴퓨터 밖으로 밀어내십시오.

필요에 따라 측면 브래킷을 제거하십시오.
카드를 슬롯 1, 2, 3 또는 4에 설치하는 경우, 오른쪽 하단의 측면 브래킷을 제거하십시오.
카드를 슬롯 5, 6 또는 7에 설치하는 경우, 오른쪽 상단의 측면 브래킷을 제거하십시오.
전체 길이 카드를 설치하는 경우, 왼쪽 측면 브래킷을 제거하십시오.

슬롯 덮개를 제거하십시오.

잠금 장치를 오른쪽으로 미십시오.

새로운 카드의 모서리 쪽을 잡고 정전기 방지 봉투에서 꺼내십시오. 금도금 커넥터나 카드의 부품을 건드리지 마십시오.
참고: 안전이 인증(CSA, UL 또는 동등한 인증)되고 업계 표준 PCIe 사양 준수를 구체적으로 명시하는 PCIe 모듈만 사용하십시오.
카드를 제자리로 밀어 넣으십시오.

잠금 장치를 왼쪽으로 미십시오.

오른쪽 측면 브래킷을 다시 설치하십시오. 전체 길이 카드를 설치하여 왼쪽 측면 브래킷을 제거한 경우, 왼쪽 측면 브래킷도 다시 설치하십시오.

래치가 잠겼는지 확인하고 덮개를 다시 설치하십시오.
덮개를 다시 설치하지 않으면 Mac Pro를 시동할 수 없습니다.

랙에 Mac Pro를 다시 설치하십시오.
Mac Pro에 모든 케이블과 전원 코드를 다시 연결하십시오.